Apartment in Liverpool
Reasons to book
About this apartment rental
Exchange Street Living is a newly-decorated property right in the heart of Liverpool. Located in a Grade II listed heritage building, this apartment offers an ideal setting to experience the city's rich history while discovering all it has to offer. With two bedrooms and a spacious living room, there is plenty of space for up to 10 guests. With its central location, it caters to both leisure and business travellers, with Liverpool ONE and the business district just minutes away on foot.
The Space:
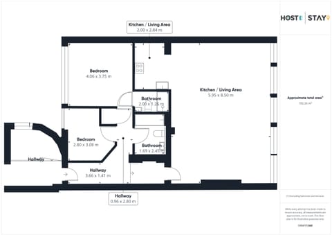
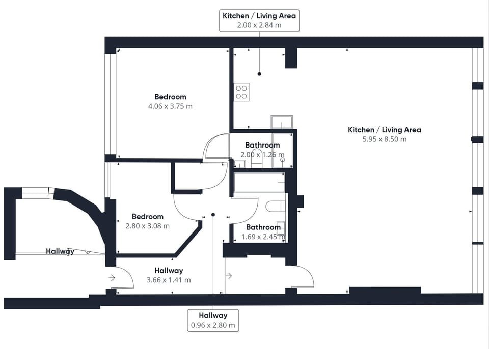
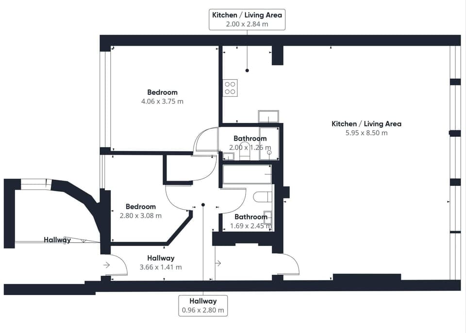
Exchange Street Living features two-bedrooms, two-bathrooms and a spacious open-plan living, kitchen and dining area. Beautifully designed with modern and stylish interiors, it's the perfect place to enjoy a city break in Liverpool.
Bright and airy with huge windows and a lovely view of the city, the living area boasts two sofa beds which each convert to a double bed so up to 4 guests can sleep comfortably in this space.
The dining area offers a large, wooden table and dining chairs whilst the kitchen is equipped with an oven, a hob, a microwave, a toaster, a kettle and a fridge freezer!
The master bedroom is a tranquil space with a double bed and a sofa bed. It benefits from huge windows, a wardrobe and an ensuite bathroom fitted with a shower, WC, and wash basin. The second bedroom is another comfy space boasting a double bed.
Decorated with grey tiles and small artificial plants, the family bathroom is contemporary and clean. You'll find a shower over the bath, WC, and a wash basin in this space.
Exchange Street Living is furnished with modern design, boasting laminated vinyl flooring in the living spaces, carpet flooring in the bedrooms, and complemented by unique art pieces, ensuring a delightful stay away from home.
Guest Access:
Guests have access to the full apartment. Access to the apartment is via a secure door lock code. Full details will be provided shortly before your arrival date.
**Please be aware that whilst the building does have a lift, we cannot be held responsible if this does not work during your stay. The lift has a limited space. It's a historic Grade II listed building that has kept its quaint interiors.
• The apartment is located within a residential building, as such this is not suitable for parties, events or celebrations and we have a strict policy against loud music or noise.
• We are unable to host groups of guests under 25 at this property.
• The check in time is 3pm and check out is 10am - unless told otherwise please stick to these times. An unauthorised late check out will incur a charge.
• Smoking is strictly prohibited and will incur a deep cleaning charge upon check out.
• Kindly note that we cannot accept parcels delivered to the apartment’s address and cannot be held responsible for any lost/damaged items. If you do require a parcel to be delivered during your stay, please contact us for our office address.
Lastly, please note, during exceptionally busy periods we may need to gain access to the property to complete maintenance works. This is to keep the property in good order for your stay. We always give 24 hours notice of this unless there is an emergency which needs addressing sooner.
The Neighborhood:
Exchange Street Living is located within the buzzing financial district of the city centre, which means we are just a short walk way away from many of the wonderful bars, clubs and sights Liverpool has to offer. Liverpool ONE shopping centre is around a 10 minute walk away through a range of beautiful architecture.
You have The Cavern Club, Matthew Street, McCooleys Irish bar, and Met Quarter less than 10-minutes walk away!
Getting Around:
You won't need to use taxis or public transport if you intend to explore the city centre. However, if you do plan to leave the centre, to perhaps visit the football stadiums or parks, the main central bus station is less than 15 minutes walk away. Moorfields train station is just a stone's throw away.
Taxis and Uber are also a comfortable choice on rainy days or if guests prefer a speedy trip.
If you're feeling a little adventurous you can also take one of the city's Electric Scooters to get you around town!
Interaction with Guests:
We’re always available for our guests so please don’t hesitate to get in touch.




































