Cottage in Wells-next-the-Sea
Reasons to book
About this cottage rental
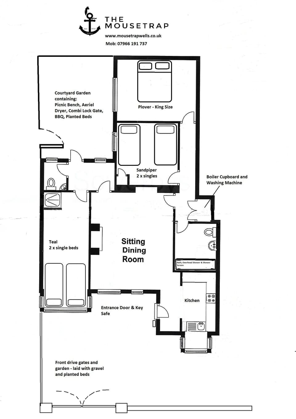
The Mousetrap is a single storey property at ground floor level, with walled courtyard and the added bonus of parking space for two cars. Making it ideal for a wide range of guests.
Families looking for a summer holiday base, will appreciate the internal space and rear courtyard - outdoor hanging for those wet sandy towels and beach gear! Families with toddlers and older guests will appreciate the absence of stairs. The tiled entrance porch and plentiful coat hanging is convenient for winter bird watchers, who may come home a little windswept and damp after a wonderful day of wildlife spotting! Whilst cyclist exploring the Norfolk Coast Cycleway have a secure rear area to store cycles and other equipment.
Beaches, walking, wildlife spotting, sports activities, visiting stately homes, arts & crafts, or simply chilling! Whatever your reason for visiting Wells and the wider North Norfolk coast the Mousetrap is a well equipped and superbly located holiday base.
During 'High Season' (Mid July-Early Sep), and all School Holidays Mousetrap only accepts full week bookings.
At most other times we accept bookings for Long Weekends (3 nights, Fri-Mon) and Mid Week Breaks (4 nights, Mon-Fri).
All bookings require £100 returnable security deposit.
Dogs are not accepted (except visual aid companions). However, we appreciate there are a wide range of circumstances and occasionally make exceptions - please contact the owners with details before booking.





