Apartment in Verona
Reasons to book
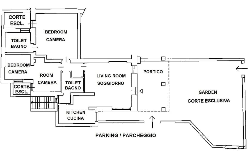
About this apartment rental
While you're here, you can enjoy all the comforts of home and more, including a full-sized refrigerator/freezer and an oven, as well as a stovetop and a dishwasher. Other amenities include Egyptian cotton sheets, premium bedding, a memory foam bed, and down comforters.




































