Apartment in Bradenton Beach, FL
Reasons to book
About this apartment rental
WHEN RENTING GOLF CARTS - GAS ONLY. NO ELECTRIC
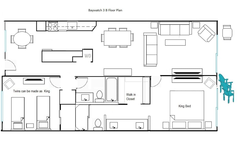
The guest bedroom in Bay Watch 3B, which has two twin beds, can now optionally be set up as a King bed (via a bed bridge kit between two twins), making it a more versatile setup. The default setup will be two twins with the bed bridge insert kit located in the guest closet.
Bed configuration:
-Master bedroom – One King Bed (with ensuite full bathroom)
-Second bedroom – Two Twins or can be set up as One King Bed (with dedicated full bathroom)
-Living room – New Queen Sleeper Sofa
So many features will make this roomy, light, and bright, nearly 1,100 square foot Bay Watch 3B condo a place you return to year after year! The kitchen was recently updated, with new plank flooring, and freshly painted walls and ceiling. It features beautifully remodeled bathrooms, comfortable furnishings, flat-panel televisions in the living room and both bedrooms, ceiling fans in both bedrooms and in the living room, and a stacking washer and dryer right in the unit. Your master retreat consists of dual vanities and a large walk-in closet. The sliders and windows were also replaced 2021. It's thoughtfully equipped with everything you'll need for your beach vacation, from blow dryers in each bathroom to plenty of kitchen supplies to make meal prep a pleasure to beach chairs, beach umbrella, beach wagon, a cooler, and beach toys.
But the thing that really stands out here is the non-stop view, which you can enjoy from just about every spot in the complex…even your two covered parking spaces under the building sport a panoramic view! And as soon as you walk in the front door of your unit, you can see right through to beautiful Sarasota Bay. Stop, put your luggage down, and walk onto the large deck, accessible through either the living room or the master bedroom. This is definitely the place you'll spend a lot of time watching for dolphins, manatees, and other marine and seabird life, enjoying the antics of boaters zipping from one spot to another on the Intracoastal waterway, or soaking in the serenity of each day's perfect sunrise. Although the inside of the unit features both dining and kitchen tables, it's likely you'll spend more mealtime right here on the balcony dining al fresco!
When you're able to pull yourself away from the deck and want to head to the beach, it's just a short three-minute walk or 300 steps until your feet touch the sand. You walk down a palm-lined walkway to the white sand and crystal clear waters of the Gulf of Mexico. Set up your chair and umbrella, break out a cold drink, open a good book, and relax! Need a little exercise? Whether you're in the mood for just a short stroll at sunset or you're an Olympic-level walker, the entire 7 and a half miles of breathtaking white sand beaches can be reached right from your special spot!
Sometimes it's a dip in the pool that's exactly what you want; the sparkling and heated Bay Watch pool is nestled in an open courtyard right at the bottom of your stairs.
Anyone in your group who likes to fish (or enjoys sitting on the dock on the bay) will love the Bay Watch fishing pier that extends into the bay. You'll find complimentary fishing pole equipment in Bay Watch 3B, too!
Although your unit features a well-equipped kitchen, you'll want to explore some other dining options! There are several restaurants within walking distance, including Wicked Cantina, Gulf Drive Cafe and Tiki Bar, Beach House Restaurant, and more. And, with just another few minute's walk you arrive at Bridge Street, which is famous for its fishing pier, beach shops, boutiques, and restaurants.
It's easy to leave your car parked at the condo and hop on the free Anna Maria Island Trolley right at the end of your street. Bay Watch 3B is also services by the Old Town Tram (and Monkey Bus too!) Just call them, and they'll pick you up right at the condo! Take it north or south to explore the Island and experience its many yummy restaurants and cool shops. Running every half-hour from Coquina Beach at the very south end of the Island to the Historic Anna Maria City Pier at the north in the village of Anna Maria, the trolley is a fun way to travel the Island and runs 7 days a week from 6 in the morning until 10 at night.
This wonderful Bay Watch 3B unit sleeps 6 people in one king bed, two twins, and a sofa bed. Guests can enjoy the use of free high-speed wireless internet, landline phone with free long-distance calls in North America, and cable television with more than 100 channels.
PLEASE NOTE! This unit is a third-floor walk-up, which means two flights of stairs, which are outside and covered. Although the stairs are well-designed and easily managed, with a landing at the half-way point on each flight, there is no elevator at the complex. At the top, you'll be rewarded by a SPECTACULAR view and peacefulness with no one above you!
Additionally, the BayWatch condo complex does not allow smoking anywhere on the property, including the balconies and parking garage.





