House in Stuttgart
Reasons to book
About this house rental
House container.
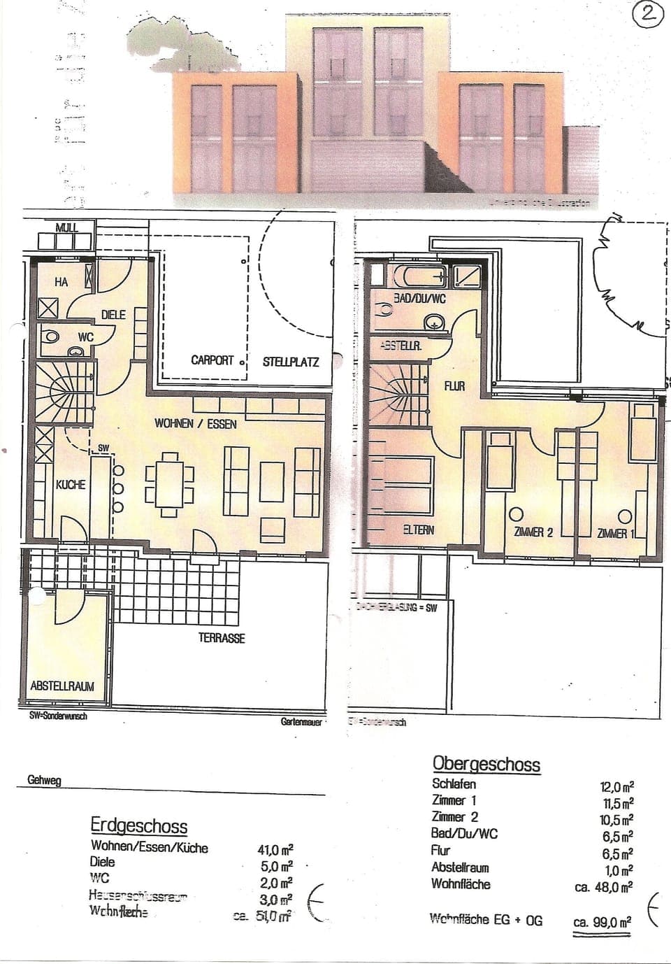
In the entrance area there is a hallway with a cloakroom, next to it there is a utility room with heating, a central vacuum cleaner system,
Washing machine and dryer . An extra toilet.
In the ground floor living - dining room with a light leather sofa, TV, telephone and fax, and in the dining area a glass table with six chairs, an open, fully equipped kitchen.
On the 1st floor. there is the master bedroom with double bed, large wardrobe, 2 bedside cabinets and side shelves.
2 children or study with pull-out double couch and in one room 1 bed, tables and cupboards.
For longer rentals (1 month) discount.





