Cottage in Normandy
Reasons to book
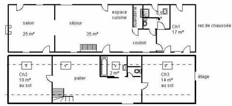
About this cottage rental
You will appreciate its warm and comfortable stay with its stove and its neat decoration, its mezzanine with its play and reading areas
The bel'air gite will be the ideal holiday home for your stays with family or friends.




































