House in Chikaming Township, MI
Reasons to book
About this house rental
Heated Pool open Memorial Day weekend Hot Tub open year round
**Please note fees vary per booking site and some totals include the cleaning fee, damage waiver fee and booking fee others break out the fees. Some sites charge an additional booking fee.**
Please read before booking:
**Minimum age requirement of 30 years old
**Signed guest agreement required
**Events, parties and large gatherings are strictly prohibited and could incur fines by local municipalities or removal from property
Please be sure to check out all of Aqua Vacation Rentals 20+ properties located in Southwest Michigan! Our properties are listed on multiple booking sites and rates may vary.
Please be sure to read all policies before booking.
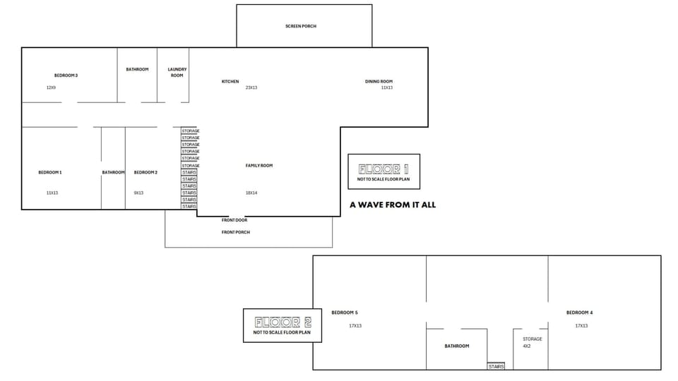
Escape to Aqua "A Wave From It All" in the serene beauty of Union Pier, Michigan, and indulge in the perfect vacation. A spacious 5-bedroom, 3-bath home just 1 mile from the sparkling shores of Lake Michigan. Designed for relaxation and gatherings, this inviting retreat offers everything you need for a memorable getaway.
This beautiful property comfortably accommodates large families or groups with its 5 spacious bedrooms and 3 full baths. Take a refreshing dip in the private pool or lounge poolside under the warm Michigan sun. Enjoy your morning coffee or evening cocktails bug-free on the screened porch, with views of the peaceful surroundings. Gather around the cozy fire pit for s'mores, stories, stargazing under the clear night sky or enjoy the hot tub after a day exploring. Located just a short mile from Lake Michigan's pristine beaches and scenic beauty, you'll have easy access to all the area has to offer.
Whether you're planning a summer beach adventure, a cozy fall retreat, or a festive holiday gathering, A Wave From It All offers the perfect blend of comfort and convenience.
Please note: In lieu of a Refundable Damage Deposit (providing a credit card for damages), Aqua charges a non-refundable fee (included in the quote before booking) which provides up to $1500 of coverage towards unintentional rental property damages. Also travel insurance is optional.
Payments-50% down upon booking and final payment due 4 weeks prior to your arrival.
Policies
- All Guests required to sign and return our Guest Occupancy Agreement.
- Minimum age of 30 years old to rent.
- Photo ID may be required upon check-in
- Maximum car parking- 3
- No smoking
- NO Pets allowed
- Events, parties and large gatherings are strictly prohibited
- Additional fees and taxes may apply
- In lieu of a Refundable Damage Deposit, Aqua charges a non-refundable fee which provides up to $1500 of coverage towards unintentional rental property damages.
CANCELLATION POLICY: Policy may vary per booking channel. NO REFUNDS are given if the cancellation is received less than 60 days prior to the agreed upon arrival date. Agent will make reasonable efforts to rebook. All cancellations must be in writing and delivered to Agent by mail or email. There is no refund for early departure.





