Apartment in Murnau am Staffelsee
Reasons to book
About this apartment rental
Since December 2018 we are open for you.
Our house has 10 self-contained units, which in total have up to 40 beds.
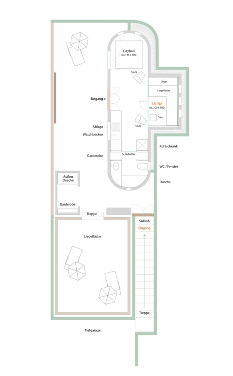
City Suite 05
(82sqm) OG
Special features: Within the residential unit (1. OG level) are all areas including the shower without thresholds (or less than 10 mm) accessible.
Optimal for 2 persons (expandable to 3 with extra bed)
Spacious living and eating
In the living room: comfortable couch, armchair, spacious dining area
high quality fully equipped kitchen
1 bedroom with double bed (180/200), TV, electric shutters
2 bathrooms / guest toilet
dressing room
wardrobe
TV and Wi-Fi
Balcony (10 sqm) with sofa, sunlounger
Additional features:
Kitchen with fridge, dishwasher, induction cooker, oven, sink, coffee maker, microwave, washing machine, cleaning products, safe
Baby cot on request
Iron with ironing board
Bath and bed linen
hairdryer
You have the opportunity to stay with us temporarily, without having to forgo the amenities that you know from home.
All units are fully furnished and have a spacious living-dining area with high quality fully equipped kitchen. The number of bedrooms, each with its own bathroom, depends on your needs, it varies from one to three units per unit. Of course there are several TVs per apartment and an additional guest toilet. The residential units are spread over 5 floors and underground parking. All floors can be reached without thresholds (or a maximum of 10mm) with the passenger elevator.
The units on the ground floor have direct access to the garden with their own terraces. The units on the upper floors have their own south-facing balcony. The two penthouses in the attic look almost over the whole place Murnau.
It was our special concern to make the property and all units so that we could meet both your high standards of modernity, as well as the flair of tradition. We have specially selected our equipment from valuable materials such as oak floors and natural stone, old wood and forged iron to contribute to your well-being.
MURNAU AT STAFFELSEE
The market town of Murnau with its approx. 12,500 inhabitants is a tranquil pre-alpine village located approx. 70 km south of Munich and rises like a terrace in a subalpine altitude of 700 m above sea level. M. above the nature reserve Murnauer Moos and the three warmest bathing lakes in Upper Bavaria. The landmarked facades of the charming Murnau pedestrian zone were designed by the famous Munich-based Art Nouveau architect Emanuel von Seidl. Cozy alleys and houses with beautiful stucco and traditional Lüftlmalereien invite you to stroll and shop. Small restaurants, cafes and boutiques characterize the townscape.
You do not have to do without modern infrastructure in Murnau. There are all the shops, markets, schools, doctors, excellent gastronomy and an active cultural and conference center with spa gardens, the central event center for concerts, theater, meetings, congresses and exhibitions.
In summer, the Staffelsee is a gem of relaxation, as well as the many kilometers of beautiful walking, hiking and cycling trails. The advantages of Murnau can be supplemented by optimal transport links. Murnau is located in the heart of the Oberland and is easily accessible via an exit of the Munich - Garmisch-Partenkirchen motorway and by train via the Munich-Innsbruck route.
The City Suites Murnau also offer ideal accommodation for relatives and visitors of the well-known Murnauer Unfallklinik, known especially for hip and knee implants as well as culture lovers, nature lovers and holidaymakers of Murnau who want to combine modern living with traditional flair in a central location.































