Sea-Esta! 4BR Townhome with Community Pool & easy beach access!

Top rated by guests
Sea Star Pool
Sea Star Village
1st Floor Street-Side Deck II
1st Floor Covered Deck off Bunk Rooms II
Living Room II
review stars
8.0Excellent
(4 Ratings)
"There were 10 of us, all family. Son, DIL, 5 and 2year old grandsons. Daughter, SIL, 16 year old granddaughter and 6 year old grandson and my husband and me."
MaryJo M.
Don't miss out! Price and availability may change
8.0 / 10.0
Excellent(4 Ratings)

House in Surf City, NC

12 guests · 4 bedrooms · 3 baths

Reasons to book

High-end valueWell priced for this area
Book with confidenceWe partner with the top travel sites so you know you're getting a great deal on the perfect rental
Includes essentialsFree WiFi/internet, Air conditioning, Pool and more

About this house rental

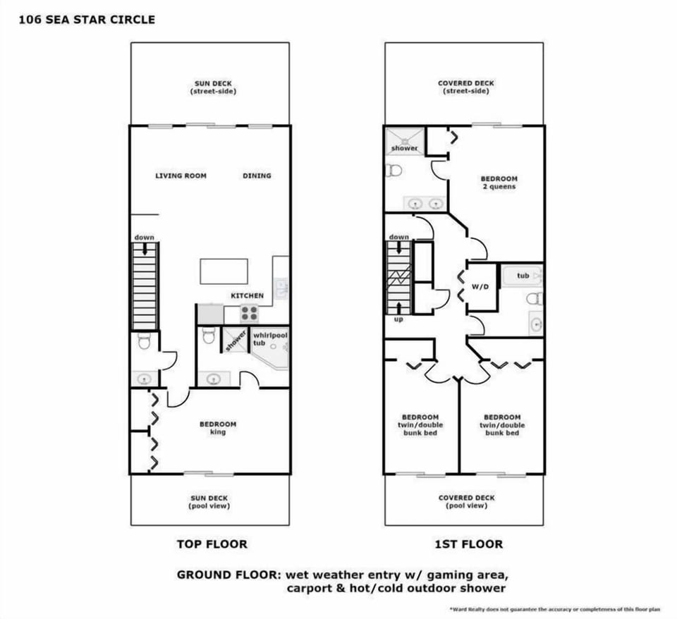
This house was just made for fun. This comfortably decorated 4 bedroom, 3.5 bath townhome offers a reverse floor plan for views of the island from the upper living area and sundeck. The top floor is also a favorite gathering spot in the kitchen and bar area to try out some coastal cuisine, especially on some fresh seafood from a nearby market or your own fresh catch.

Living and Dining:
You'll find coastally inspired decor throughout this sunny and bright home. The open living, dining and kitchen area creates plenty of space to relax or dine together. The modern kitchen includes everything you need to whip up delicious meals, with seating for 8 around the table plus more at the counter. You can also take your meals or drinks outside on the deck, enjoy the views and just relax.

Bright modern kitchen
Dining and Bar seating for 12
Spacious and comfortable living room
Half bath off kitchen
Laundry on first floor
Deck access from living room
King master on 2nd floor
Game room with foosball table on the ground floor
Sweet Dreams:
All but one of the 4 bedrooms are on the first floor, providing peace and quiet when the day is done.

King master (3rd floor) with private bath with whirlpool tub and private sun deck.
A bedroom with two queen beds, with private bath and sliders to a private deck.
Two bedrooms with Twin over double bunks both with sliders to a shared covered balcony, with a pool-view and full bath adjacent

Outdoor Spaces:
As part of the lovely Sea Star village, you'll have access to the easy beach access which features a wooden ramp (roll easy/no steps) which is great for taking supplies and small children down to the beach. Sun decks and covered balconies provide views of the ocean and places to relax, while the enclosed outdoor shower makes leaving the beach outside easy.

Sundecks
Covered decks
Enclosed hot/cold shower
Extra easy and convenient beach access

Additional Property Information:
Sea Star Village rentals only provide parking for 3 vehicles.
This unit overlooks the Surf City Line Taco Restaurant and Bar with an outside entertainment area. They often have local bands on Saturday afternoons or early evenings in the Summer.
The Hula Bar Restaurant and Bar is across the road from the complex.
Location:
This home is located in Surf City, 2.5 north of the high rise bridge in the central part of Topsail Island. You will find several restaurants, entertainment, fresh seafood markets, boutiques, gift stores, bike and gear rental stores, parks and more within a few miles radius. Some even within walking distance of your home. You are close to our local restaurants, shops, Surf City pier and more! Be sure to visit some local attractions such as the Karen Beasley Sea Turtle Hospital and the Missiles and More Museum that tells the story of our island's past.

Amenities:
Central air/heat
5 color TVs with streaming
High speed wireless internet access
Dishwasher, microwave, washer/dryer, ceiling fans
Enclosed hot/cold outside shower
4 sundecks with furniture
Trip Preparation:

Topsail Island rental homes with Ward Realty all have minimum standards to make your stay on Topsail be as close to home away from home as possible. All of our rentals include fully equipped kitchens, basic small appliances (microwaves, coffee makers, toasters, blenders), pillows comforters/bedspreads, television(s), central heating/air, iron/ironing board and much more! See below for a helpful list of what to bring with you to your Topsail Island vacation rental. Please note that Topsail Island vacation rentals do not come with sheets or towels, you may bring your own or rent them through Ward Realty.

Amenities at Sea-Esta! 4BR Townhome with Community Pool & easy beach access!

Free WiFi/internet
Air conditioning
Pool
Non-smoking
TV
Coffee/tea maker
Refridgerator
Kitchen
Balcony/Terrace
WiFi/Internet
Microwave
Dishwasher
Washing machine
Dryer
Kitchenware
No pets allowed
Oven
Stove
Laundry services
Ironing facilities

Map of Surf City, NC


Ratings and reviews

8.0 / 10.0
Excellent(4 Ratings)
8.0 / 10.0Excellent·Jun 2025
Loved the location. Easy walk toThe beach. The living room furniture needs to be professionally cleaned!! Both the couch and the footstool are extremely dirty.
8.0 / 10.0Excellent·Jun 2024
Loved the location. Easy walk to the beach and enjoy the pool. Like the layout of the condo and the size was good for our family. The outside decking does need power washed, as well as the parking area along the house. Check in was easy but would be better if you weren’t required to stop and get parking passes for your vehicle.
10.0 / 10.0Outstanding·Aug 2022
There were 10 of us, all family. Son, DIL, 5 and 2year old grandsons. Daughter, SIL, 16 year old granddaughter and 6 year old grandson and my husband and me.
6.0 / 10.0Average·Aug 2022
Property smelly, blankets not fresh at all. Too much nick nacks around. Various damage parts , blinds damaged so rooms to bright in early morning. House not as clean as expected Cleanliness is important and not as much stuff around ( dressers, etc,,, Dryer wasn’t great. Took forever to dry clothes. Bones of house great. Just needed a really good clean and fresher blankets for bed and less clutter so people could move around more freely. All the furniture made the place feel crammed

$$$$
expedia logo

FAQs

Is parking included with this house?

Parking is not specified as an available amenity at Sea-Esta! 4BR Townhome with Community Pool & easy beach access!. For more information, we encourage you to contact the property about where to park.

Is there a pool at this house?

Yes, a swimming pool is available for use at Sea-Esta! 4BR Townhome with Community Pool & easy beach access!. Enjoy the water!

Is Sea-Esta! 4BR Townhome with Community Pool & easy beach access! pet friendly?

Unfortunately, this house is not pet-friendly. Try searching again and filter for "Pets Allowed"

What amenities are available at Sea-Esta! 4BR Townhome with Community Pool & easy beach access!?

We found 20 amenities for this rental. This includes free wifi/internet, air conditioning, pool, non-smoking, and tv.


Explore similar stays in Surf City

Explore all stays