House in Emilia-Romagna
Reasons to book
About this house rental
In and around Buti there are all the necessary shops and different restaurants/pizzeria/bars. Minimarket and baker are available in the central square (piazza Garibaldi), on monday morning it's also the market place. Supermarket available at 5 kms.There is a home restaurant at 550 meters from the property, they do also food delivery and it's possible to organize with the a cooking lessons. Further adviced restaurants/pizzeria's: Al vecchio molino, Le mangiatoie da Tormento, Trattoria Pacci, La Grotta, I maggi. Tennis fields available at 7 kms.
Access road:
Please note that the road from Buti to the house (in total 1,5 km) has 500 meters of steep road with 3 hairpin turns and 900 meters of gravel road. So we don't suggest to come with sport cars or caravans. Except Ferrari and other similar sports cars, no problem to ride up with other cars. The road is one lane for 700 meters and narrower for the last 200 meters. If you cross another car, one of those must return to the first available space. The road is used by the owners / guests of 5 houses, so it is a road with little traffic. The driver must have a minimum of familiarity with the car maneuvers.
Dogs:
Dogs are welcome, the tenant has to check that the furniture is not damaged, remove the droppings and prevent them from digging holes or enter in the pool. Additional charge: 25 euro for each dogs. If you want to bring more the 2 dogs enquiry before booking in every case.
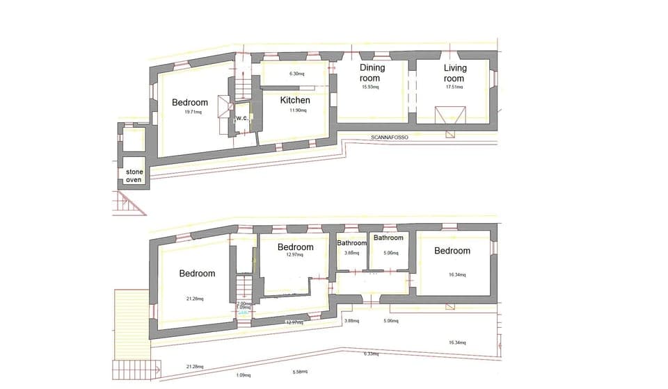
BIG HOUSE:
Ground floor: kitchen, dining/living room, 1 bedroom with 2 single beds and a toilet.
First floor: 3 bedrooms, 2 bathrooms.
SMALL HOUSE:
Ground floor: kitchen, dining/living room, bathroom.
First floor: 2 bedrooms, 1 toilet.
OUTDOOR FACILITIES (all for your private use):
Fenced garden & Parking places
Garden chairs, sun loungers and sun umbrellas
Barbecue
Swimming pool (14x5,5, depth: 1,5m).
The 2 houses, garden and pool are all for private use of the tenant.
The pool is open from half May to end October.
Checking in all at the same time NOT required for this property.
The rental prices include:
Electric power, water, gas (except heating)
Wi-fi internet connection
Additional charges to pay on spot:
Bed linen/bath-towels/pool towels (compulsory): €.12,00 per person
Final cleaning (compulsory) €.190,00
Local tax: 1 euro per person per night
Heating charges (5,5 euro/m3)
Dogs fee: 25 euro each per stay
Standard check-in is from 16 to 19:30. Late check-in 19:30-22:30 is also possible (in this case there is an extra charge of 35 euro).




































