Farm Stay in Pendle District
Reasons to book
About this farm stay rental
Great for wedding stays;
- 10 minutes to Stirk House in Gisburn
- 20 minutes to Bashall Barn
Furry friends welcome.
ONLY ONE DOG ALLOWED, it is a working farm with sheep so dogs must be kept on a lead.
Play park for the children in your private garden
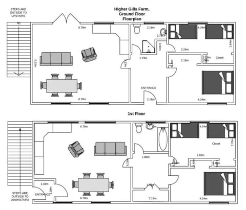
The property is thoughtfully split into two separate apartments, making it ideal for families travelling together. This listing is for lower laithe which features a fully equipped kitchen and open-plan living and dining room, ensuring ample space and comfort for everyone. Located on the top floor accessed at the side of the farmhouse upstairs
Accommodation:
- Two Bedrooms: Cosy and beautifully decorated, perfect for a restful night’s sleep.
- A Bathroom: Modern and spacious, ensuring convenience and comfort.
- A Kitchen: Fully equipped with all the amenities to prepare delicious meals.
- An Open-Plan Living/Dining Rooms: Comfortable and inviting, perfect for relaxing and enjoying meals together.
Children will love the on-site park, providing endless hours of fun and adventure right at your doorstep.
Whether you’re looking to explore the surrounding countryside, enjoy the rural lifestyle, or relax in a beautiful and tranquil setting, Higher Gills Farm offers the perfect getaway. Book your stay today and experience the charm and beauty of this exceptional holiday home.
We will send you a link to your house manual before check in which includes any house rules





