Apartment hotel in Paros, Greece
Reasons to book
About this apartment hotel
*** Please note, an Environmental fee €10,00 per night, is not included in the rates and has to be paid at the property.
The refined and serene complex of The S.A.N.D. Collection Suites, proudly stands in the higher level of the premises, constituting a minimalistic soothing ambience with amazing sea views and picture-perfect island perspective. It is located only 2 minutes away from the seductive Santa Maria beach -a natural beauty reference point for the island of Paros-, offering a plethora of charming relaxing spots in the apartment’s private verandas which are ideal to leisure in a happy island mood.
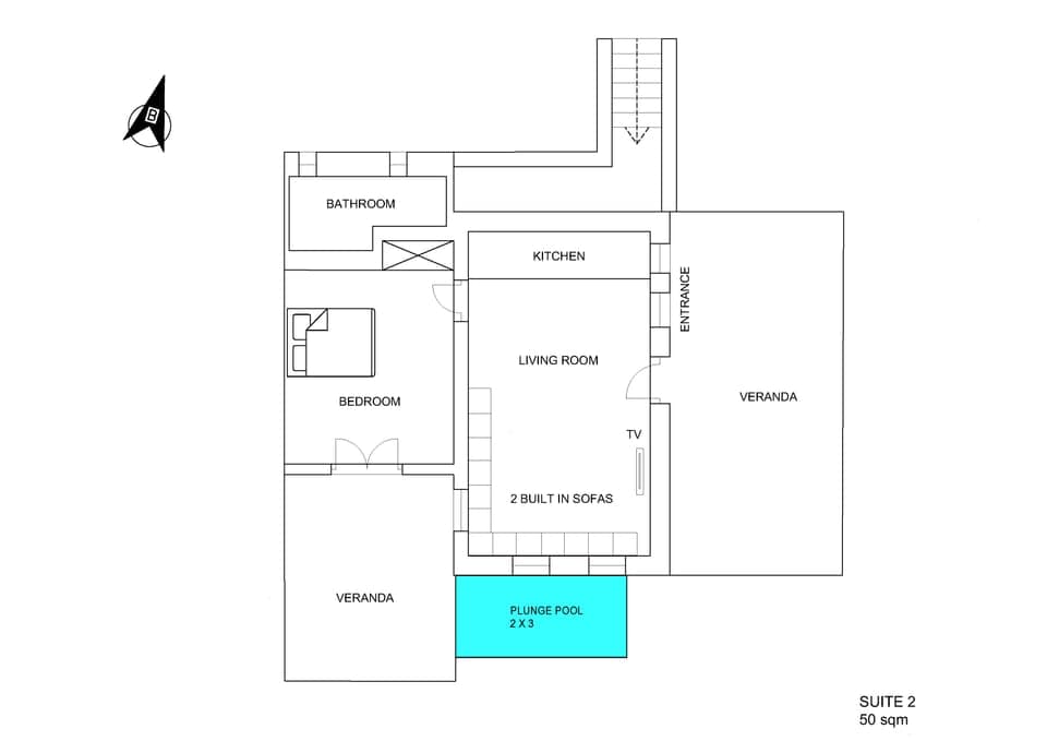
Sea View Suite with Private Pool offers a refined and cosy stay in the comfort of an island-chic oriented environment. Quiet, comfortable and serene, it is ideal for couples that love the proximity to the beach and the impeccable views of Santa Maria. Composed by a double bedroom (12 m2), an inviting living and kitchen area of 28 m2, a minimal style bathroom (3.5 m2) and a wonderful shaded veranda of 15 m2 that offers first class sea views.
Sea View Suite with Private Pool : 50m2
Outdoor premises: 15 m2
Sleeps: 2-4
Bedrooms: 1 double bedroom
Beds: 1 double bed
Bathrooms: 1
1 Living room
1 fully equipped Kitchen
1 beach view shaded veranda
Private Pool 2×3 m
The S.A.N.D. Collection Amenities
General Amenities
Signature Private Terrace
Cocomat mattresses
Ultra-quiet Daikin Air Conditioning
Ceiling fans
Wi-Fi Internet
Electronic Safe boxes
Parking
Villa’s & Suites Amenities
Linen (sheets, towels etc.)
100 % Cotton Cocomat bathrobes
Beach / Pool towels
Clothing Iron & Ιron Board
Entertaining Amenities
Smart TV 32-inch
Bathroom Amenities
Hair dryer
Wall mounted makeup mirror
Bath Amenities (Shower Gel etc.)
Kitchen Equipment
Fridge Freezer
Electric Kitchen Ceramic Hob and Stove
Kitchen Utensils
Filter Coffee Machine
Nespresso Coffee Machine
Electric Kettle
Fully Equipped Kitchenette (cutlery, glasses, dishes etc.)
The S.A.N.D. Collection offers outstanding concierge services and is available for the creation of tailor-made island experiences exclusively for its guests. As Paros insiders, we are at your service in order to deliver an impeccable holiday experience that exceeds your highest standards.
Paros crystal clear waters, its impressive golden sand beaches and charming cozy bays, create a relaxed, carefree vibe to the island’s famous beach life that can only compete with the famous island’s night life: Paros is an island that cherishes joyful living, offering an ideal setting for worry-free, unforgettable holidays, for couples, families and friends.
Start by a refreshing swim in Santa Maria that can lead to an all-day indulging seaside bliss, have an aperitif at the picturesque Naousa port and enjoy a stroll at its well-known boutiques and shops. Have a wonderful star-light dinner that can be cosmopolitan or quiet, just like Paros; end your day at the stylish cocktail bars where every promise of heartwarming island fun is met, in a never ending joyful summer narration.
The S.A.N.D. Collection villas are located in the beautiful Santa Maria, only 5 km away from Naousa, 15 km. away from the island’s port in Paroikia and 26 km. away from the island’s airport.
DISTANCES
Paroikia (Port): 15 km.
Airport: 25 km.
Naousa: 5 km.
Lefkes: 5 km.
Pisso Livadi: 7 km.
HOW TO REACH US
After arriving at the airport of Paros, take the regional road leading to Paroikia, and once there; turn right towards the direction of Naousa. Just before exiting Paroikia, at the Naousa – Lefkes intersection, take the left turn towards Naousa. When you reach Naousa, follow the signage on its regional road and turn right directing to the circular intersection on the periphery of Naousa. Once you reach the circular intersection keep driving straight, following the signage directing to Santa Maria, Ambelas and Piso Livadi and turn left at the Santa Maria signage.
Amenities at Sea View Suite with Private Pool | The SAND Collection Villas & Suites
Map of Paros, Greece





