House in Surf City, NC
Reasons to book
About this house rental
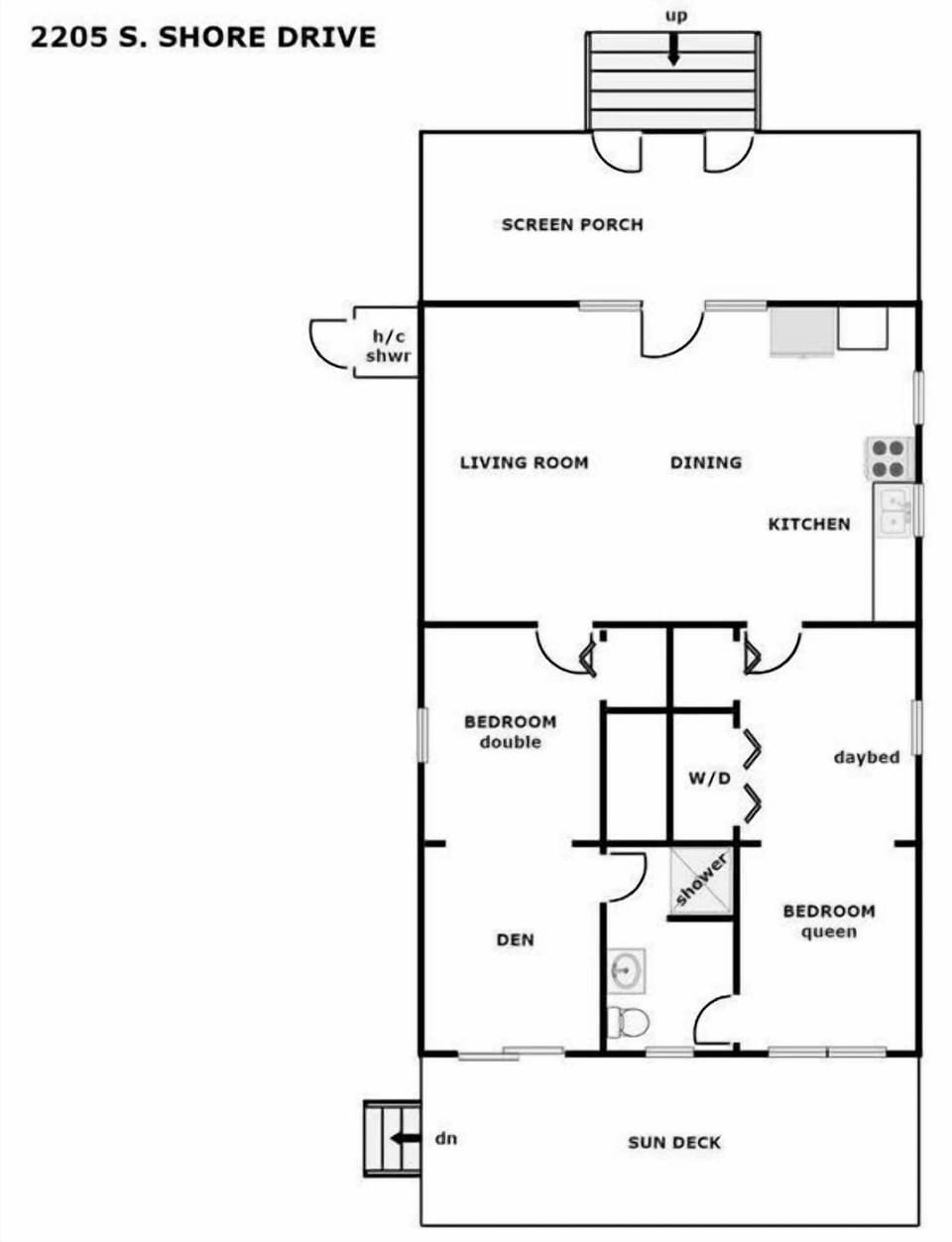
Step inside the home to the open area that includes the cozy living room, dining table and kitchen with hardwood floors throughout. The simple kitchen includes everything you will need to prepare meals during your stay and the open layout ensures that conversations never have to stop. The living room is comfortably furnished with a large sectional sofa and the dining table seats at least 6.
Color cable TV is in sitting area off of bedroom, not living room
Sweet Dreams: *Linens (bed/bath) are not included!
North Back Bedroom - Double with attached den with TV, shared full bathroom - also has access to the sun deck on back of home
South Back Bedroom - Queen with separate space with a daybed, shared full bathroom - washer/dryer are located in the closet of this room
Location:
Your beach rental is located approximately 2.3 miles south of the Surf City high rise bridge. You’ll be near the central part of Topsail Island which puts you close to restaurants, shops, Surf City Pier and more! Be sure to visit some local attractions such as the Karen Beasley Sea Turtle Hospital and the Missiles and More Museum, which tells the story of our island’s past.
Amenities:
Central Heat/Air
1 cable TV located in sitting area off of bedroom (not living room), DVD player
Wireless Internet
Kitchen with microwave (no dishwasher)
Washer/Dryer
Ceiling fans
Enclosed outside shower - hot/cold water
Sundeck off back of house and screen porch with furniture on front of house
Additional Property Information:
Smoke Free - No smoking allowed by anyone on the premises.
Pet Free - No pets allowed by anyone on the premises.
Beach access a short stroll away - to the left of house #2202 S Shore Dr.
This property does not have a dishwasher.
Trip Preparation:
Rental homes with Ward Realty all have minimum standards to make your stay be as close to home away from home as possible. All of our rentals include fully equipped kitchens, basic small appliances (microwaves, coffee makers, toasters, blenders), pillows, comforters/bedspreads, television(s), central heating/air, iron/ironing board and much more! See below for a helpful list of what to bring with you to your rental. Please note that this home does not come with sheets and towels. You may bring your own or rent them from Ward Realty.
Photos displayed on this website are intended to provide a general representation of our vacation rental properties and the surrounding areas. While some amenities may be pictured, they are for display purposes only. Only those amenities listed on the website description, not in photos, are available. While we strive to keep all images accurate and up to date, furnishings, décor, and amenities may change over time and may vary slightly from what is shown. Seasonal differences, weather conditions, and lighting may also affect the appearance of the property. We do our best to present each rental honestly, but we cannot guarantee that every detail will be exactly as depicted. If you have specific questions or requirements, please contact us directly before booking.





