Villa in Radda in Chianti
Reasons to book
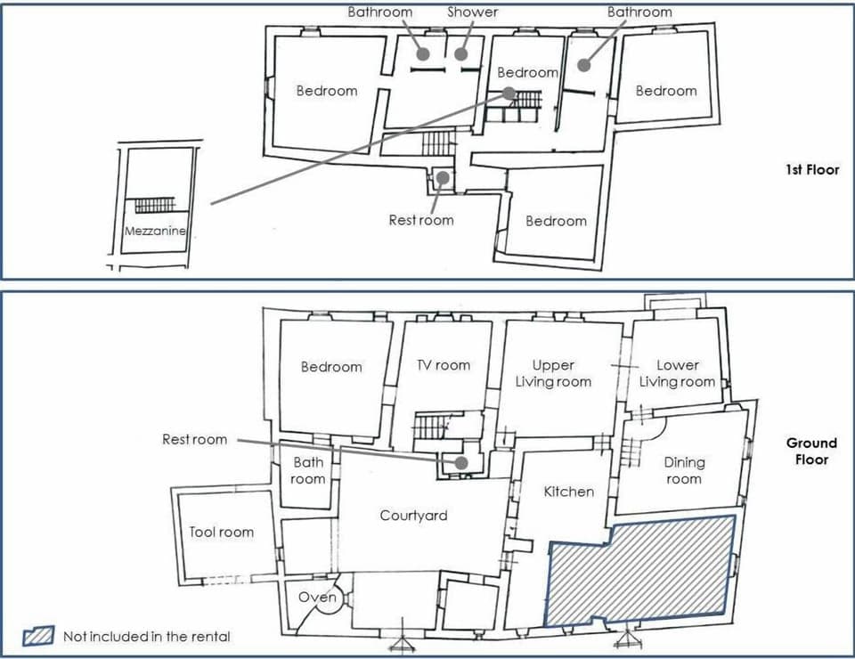
About this villa rental
The property spreads across a little more than 5 acres. The villa overlooks the 2.5 acres of olive grove, surrounded by a beautiful view of surrounding vineyards and small villages in the distance. The property is bound on all sides by a fence to protect the plants from wild boars, roebucks and deers living in hundreds of hectares of woods that surround the property.
The interior is decorated with artifacts/souvenirs from our trips around the world. The kitchen is very well equipped with everything to enjoy a fantastic Italian meal.On demand Alessia, a professional cook, can come and prapare at home a typical and sophisticated diner for you and your guests.In the courtyard, where you can enjoy the majority of the meals, there is also an old brick oven to cook your pizzas or to grill Tuscan beef meat (“tagliata”) and sausages. Most of the bedrooms overlook the olive grove and at night you could hear the wild boars in the fields below. The pool is cool and refreshing and enjoyable almost at any time during the renting season. Small children can play at the Playground, equipped with wooden houses and outdoor structures.
You can enjoy the lovely sunset on the terrace with an aperitivo, a bottle of the local Chianti and a plate of prosciutto crudo (ham), salami and caciotta (local cheese slices).
The small surrounding towns are a must, as they offer a large choice of extremely good restaurants, excellent food shops with local specialties, wine festivals and caves, open air farmers markets for your fresh vegetables and many other options. The local grocery store has a 'live' butcher, fresh bread and most everything else. You can’t miss the monastery and church of S. Leonino going back to the 11th century, whose religious functions preserve the tradition and attractiveness of ancient chants.
Being not too far away from Siena you can enjoy the Palio (twice a year, in july and august), a must for first timers.
A little more on the house and its history
The house belongs to the category of buildings that historians of Tuscan architecture call “spontaneous architecture” being the result of additions made through centuries by successive generations. Its most ancient part is deemed to go back to the 13th century and one can still detect, where now is the upper part of the sitting room, the features of a small square tower conceived as a lookout of a fortified farm, named “Le Stinche alte”, that today survives as a ruin. “Le Stinche” in the second half of that century belonged to the Florentine family of Guido Cavalcanti, a close friend of Dante Alighieri and himself a renowned poet, who, like Dante, was a “Guelfo Bianco”s (a “White Guelf”), that is a follower of the moderate faction of the “Guelf” Party. This fortified farm in 1304 was assailed and taken by the “Guelfi Neri” (“Black Guelfs”), the radical faction of the Guelf Party that had become the fierce enemy of the “Guelfi Bianchi”. At that time, the “Guelfi Neri” acknowledged as their leader Charles II of Anjou, King of Sicily, whose son Robert, Duke of Calabria and future king of Sicily, was moving from southern Italy to Tuscany with a large party of knights (see Davidsohn, Storia di Firenze, german title Gechichte von Florenz)). In due time the small lookout developed as an agricultural farm.





