House in High Street
Reasons to book
About this house rental
Escape to Luna Cottage, a charming holiday home nestled in the heart of Staithes. This delightful property offers a perfect blend of comfort and coastal charm, ideal for families or small groups. Enjoy well-appointed bedrooms, a fully equipped kitchen, and modern amenities. Explore the picturesque village of Staithes, known for its vibrant arts scene, stunning harbour, and easy access to the Cleveland Way for scenic walks. Luna Cottage provides a welcoming base for a memorable seaside getaway.
The Space:
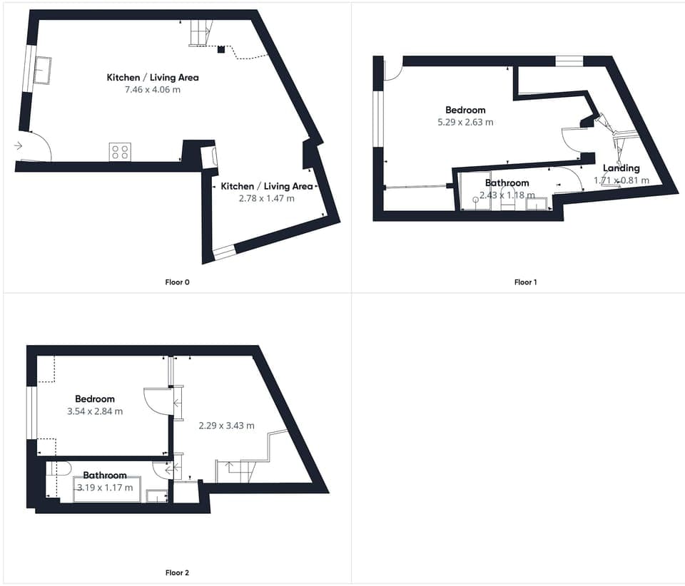
A real treat awaits at this fishing cottage in Staithes. The luxury two-bedroom holiday let sleeps up to four guests and has a definite quaint atmosphere which is perfect and everything you could want from a stay in this sleepy village.
You’ll be able to tell from the moment you set foot inside that we are serious about presenting guests with an amazing stay in North Yorkshire.
The open plan living room, dining area and kitchen will almost certainly be the space in which you all spend the most time socialising together. It is furnished to the highest standard and it feels like home in no-time-at-all.
The shaker kitchen shares this space, with modern cooking and cleaning appliances so you can enjoy self-catering independence during your stay in Staithes.
Both bedrooms feature comfy beds - one king and one twin room ensuring there is a layout to suit families and friends alike. There is storage space for your belongings in both bedrooms, so be sure to unpack your bags and really make yourselves at home.
There is a sofa bed at Luna Cottage which can be used if required, however you will need to bring your own bedding. If not used as a bed, this second floor space provides a relaxing area filled with light, ideal for reading or just chilling.
There are two modern bathrooms at Luna Cottage. The first-floor bathroom is complete with a walk-in shower. If you’re looking to unwind with a long, relaxing soak in the tub after a day of exploring the coast, then the second-floor bathroom is the place for you.
Guest Access:
Guests have access to the full property.
The keys to Luna Cottage are accessed via a secure key safe and full details will be provided shortly before your arrival date.
There are two long stay car parks at the top of Staithes Bank and further details will be provided before your stay. A parking permit is provided, allowing for free parking for one vehicle.
The Neighborhood:
Nestled along the rugged North Yorkshire coastline, Staithes is a picturesque fishing village brimming with charm, history, and breathtaking scenery. With its winding cobbled streets, quaint cottages, and stunning harbour views, Staithes offers the perfect escape for those seeking tranquillity by the sea.
Once home to the famous explorer Captain James Cook, this historic village is a haven for artists, walkers, and nature lovers. Explore the dramatic cliffs of the North York Moors National Park, stroll along the sandy beach, or discover the fascinating rock pools at low tide.
Staithes boasts a friendly atmosphere, with traditional pubs, cosy cafés, and a renowned art gallery showcasing local talent. Enjoy fresh seafood, embark on scenic coastal walks, or simply unwind and take in the stunning sea views.
Getting Around:
With easy access to nearby Whitby and Saltburn, Staithes is the ideal base for a memorable Yorkshire getaway.
The nearest train station can be found a short 20-minute drive away in Whitby. Whitby Train Station has direct services operating to locations across Northern England including Billingham, Blaydon, Hartlepool, Hexham, Middlesbrough, Newcastle upon Tyne, Prudhoe, Seaham, Stockton-on-Tees, Sunderland and Thornaby-on-Tees.
One bus route operates in Staithes. Hop on the X4 to visit Loftus, Saltburn-by-the-Sea, Redcar and Whitby.
Interaction with Guests:
We’re always available for our guests so please don’t hesitate to get in touch.
