House in High Street
Reasons to book
About this house rental
Hampdon Cottage is a traditional cottage that is typical of the historic coastal village of Staithes. Sleeping up to five guests across three bedrooms, this characterful dog friendly cottage is well presented throughout and has been designed with comfort in mind. Located just a short minute stroll from the beach and nearby independent shops, cafes, and pubs, Hampdon Cottage is perfectly placed to enjoy a relaxing retreat in Staithes.
The Space:
A cosy and characterful property, Hampdon Cottage can comfortably accommodate up to five guests for a wonderful getaway on the North Yorkshire coast.
At the beating heart of this cottage is the generously sized living room. Ideal for the perfect night in, the living room is fitted with two leather sofas, a matching armchair, a TV and an open log burning fireplace. This space is the ideal place for quiet hours of relaxing.
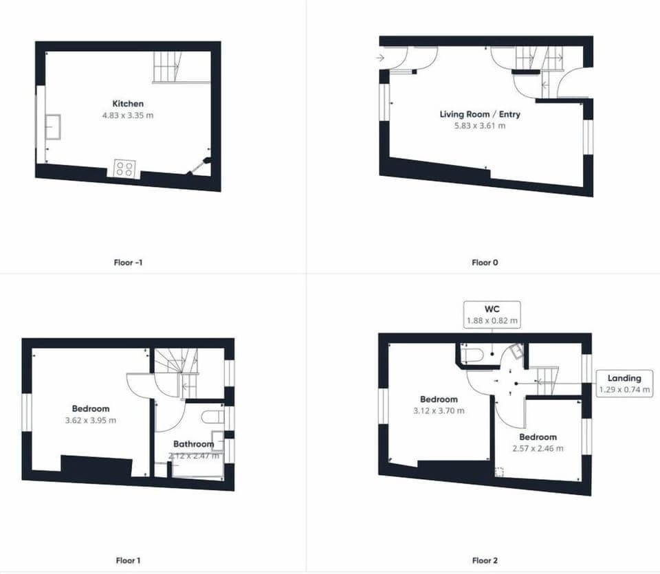
Hampdon Cottage’s kitchen can be found in the basement. Standing out in the kitchen are the exposed ceiling beams, along with crisp, white cupboards. The kitchen houses modern appliances including a microwave, kettle, toaster, coffee machine, and a dishwasher, along with a traditional oven and hob. You’ll also have all the cutlery and dinnerware you will need for your self-catering retreat.
Sharing the kitchen space is the dining area, which includes an oak dining table and matching chairs.
You'll find the master bedroom located on the first floor at Hampdon Cottage. Here you'll find a comfortable king size bed with plush bedding and premium bed linens to ensure you have a great night’s sleep. A wardrobe, bedside drawers, lamps, and a mirror complete the space.
Take the stairs up to the second floor and you'll find a bedroom which sleeps two guests. Ideal for children, teenagers, and adults alike, this room is home to two single beds.
You’ll also find a single bedroom on the second floor boasting a number of handy amenities. An additional pull-out bed is also available in this room which can be made up upon request prior to your stay, increasing the occupancy to six.
There is one family bathroom at Hampdon Cottage and this can be found on the first floor, next to the master bedroom. The space features a bathtub, overhead shower, WC and wash basin, whilst there is also a separate WC on the top floor.
Guest Access:
Guests have access to the full property. The keys to Hampdon Cottage are accessed via a secure key safe and full details will be provided shortly before your arrival date.
Pay and display parking is available at the top of Staithes Bank.
Hampdon Cottage is spread across four floors. Due to the traditional nature of the cottage, some staircases are steep and shallow.
A maximum of three well-behaved dogs are welcome to stay at Hampdon Cottage per reservation.
The Neighborhood:
Staithes is the quaint coastal hamlet which was recently named one of Britain’s most beautiful seaside villages. It has high cliffs, winding streets and mismatched cottages bursting with charm.
The village is also known for its abundance of fossils which can be found along the small beach and in the cluster of rockpools. This area is nicknamed the ‘Dinosaur Coast’ as it’s packed with history.
Staithes is a magnet for art and artists alike. Throughout the village you’ll find amazing painted illusions known as the ‘Painted Illusions Trail’ created by the famous artist Paul Czainski. It is also the home to the impressionist art society, known as Staithes Group, and their work can always be seen dotted around. Visit Staithes Gallery and browse the wonderful exhibits inspired by the village.
Getting Around:
Hampdon Cottage is within walking distance of all that Staithes has to offer and within 30 minutes’ drive time of Saltburn and Whitby.
Staithes has great bus links to surrounding areas including Whitby, Sandsend, Saltburn, Middlesbrough, and Scarborough. The X4 bus runs from Middlesbrough to Whitby passing Staithes Lane End making it very accessible to other desired bays.
The closest train stations are located in Saltburn and Whitby.
Interaction with Guests:
We’re always available for our guests so please don’t hesitate to get in touch.





