Apartment in La Clusaz
Reasons to book
About this apartment rental
Composition of the bedding:
- Bedroom 1: 2 beds 90x190 2 people - duvet or blanket
- Bedroom 2: 1 bed 140x190 for 2 people - duvet or blanket
Additional description:
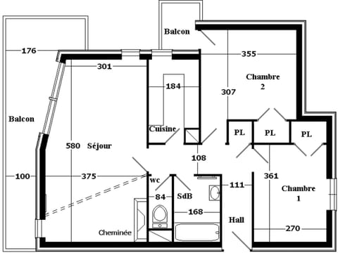
Entrance/Hall - Bedroom 1 (9.74m²): 2 beds, wardrobe cupboard, north window overlooking the field - Bathroom (3.64m²): Bath, sink, washing machine - separate wc - Bedroom 2 (10.89m²): 1 bed , wardrobe, south-west French window with village and Beauregard view, 3.50m² balcony access - Living room (20 m²) with Lounge area: Sofa, coffee table, television, fireplace, Dining area: Table and chairs, bay window with south balcony access and west window (5.20m²), mountain and village view - Fitted kitchen area: 4-burner hob, oven, dishwasher, microwave, fridge (115L), sink, worktop and storage cupboards, west window. Mezzanine access ladder (rest corner) with a bench seat.
Duvets or blankets - Ski locker n°9 - Collective fuel heating - Pets not allowed - Residence parking - WIFI - Classification in progress - Estimated classification: * for 4 people
Sheets and bath towels, tea towels... are not provided.
The end-of-stay cleaning service is an additional charge to be ordered on the day of your arrival; a cleaning deposit may be requested upon arrival.
Property managed by a professional. Unless stated, services such as cleaning, bed linen, towels etc. are not included in the price of this rental. If pets are allowed (information in the advertisement), charges may be applicable.
Only equipment mentioned in this advertisement are present. Equipment not mentioned are not considered to be present. Unless there is an electric charging station in the accommodation, charging electric vehicles is prohibited.
Residence MANDARINE (1972) - apartments (8)
La Clusaz - Vallée des confins - NANT district - 165 route du Nant - 180 meters from the Nant ski lift and the slopes - 450 meters from the Bossonnet Télemix ski station and ESF gathering (ski school) - 650 meters from the Haut du shops village - 175 meters from the free shuttle stop - 1.4 km from the bus station and 40 km from the SNCF train station (Annecy) - Quiet, sunny area and close to the slopes -




































