Apartment in Kleve
Reasons to book
About this apartment rental
A short distance from cycling, hiking trails, and more, this family-friendly apartment lets you experience it all. With convenient onsite parking, you'll be ready to make the 7-minute drive to The Schwanenburg or the 8-minute drive to Kleve Zoo.
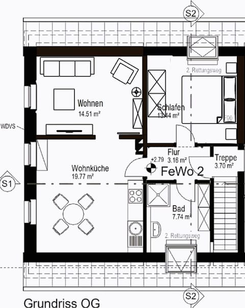
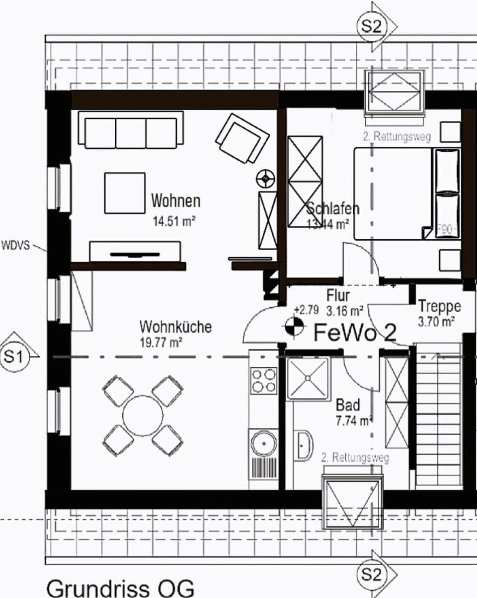
You can make the most of the outdoors with the garden and BBQ grill at this 624-sq-ft apartment. For a change of scenery, come inside and enjoy the WiFi and cable/satellite TV.
A living room and a sofa bed are featured at this 1-bedroom, 1-bathroom rental. Bathroom amenities include a hair dryer, towels, and toilet paper. Prepare a home-cooked meal in the kitchen, complete with an oven, a stovetop, and a refrigerator, as well as a coffee maker, an electric kettle, and a microwave. And thanks to the washer and dryer, you'll even be able to travel light.






















