Apartment in England
Reasons to book
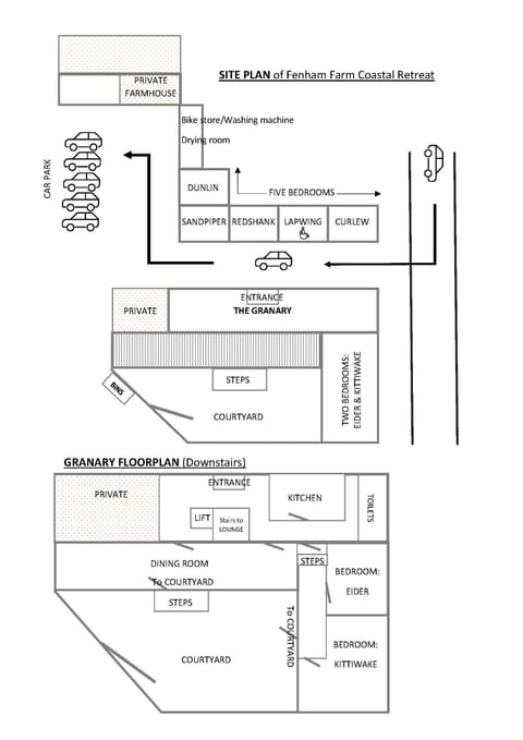
About this apartment rental
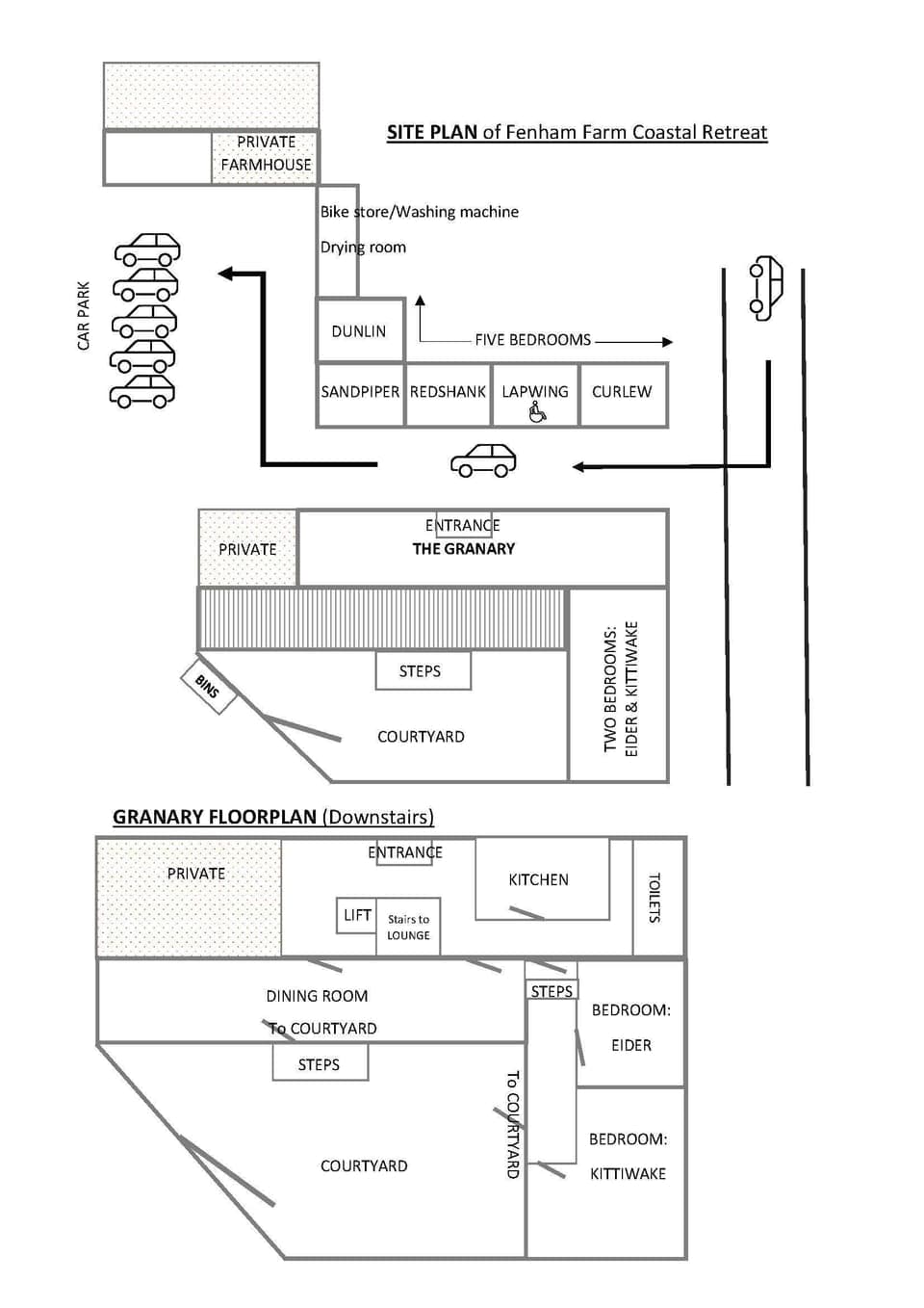
Guests can relax in the expansive upstairs lounge and enjoy the amazing sea views. It is accessible by lift. One end of the lounge has seating around a large picture window looking out over Holy Island. The other end is a cosy, comfortable space with wood burning stove.
The spacious dining room includes seating for up to 20 guests which can be configured any way to suit your groups needs.
The fully equipped kitchen in the Granary has everything you might need to whip up all your favourite meals. Several fridges, lots of bench space and two ovens makes feeding a crowd easy too!






















