House in Great Ayton
Reasons to book
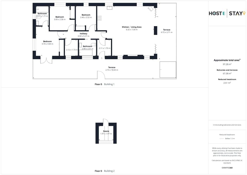
About this house rental
Located in Middlesbrough, this 3-bedroom, 2-bathroom vacation home lets you experience it all. Fans of nature and the outdoors will love being 9 minutes by car from North York Moors National Park and 11 minutes from Roseberry Topping. Jump into your car and make short work of the 8-minute drive to Ormesby Hall or the 11-minute drive to Albert Park (and enjoy the property's convenient covered onsite parking in the meantime).
While you're here, you can enjoy all the comforts of home and more, including free WiFi and a garden.





