House in Great Ayton
Reasons to book
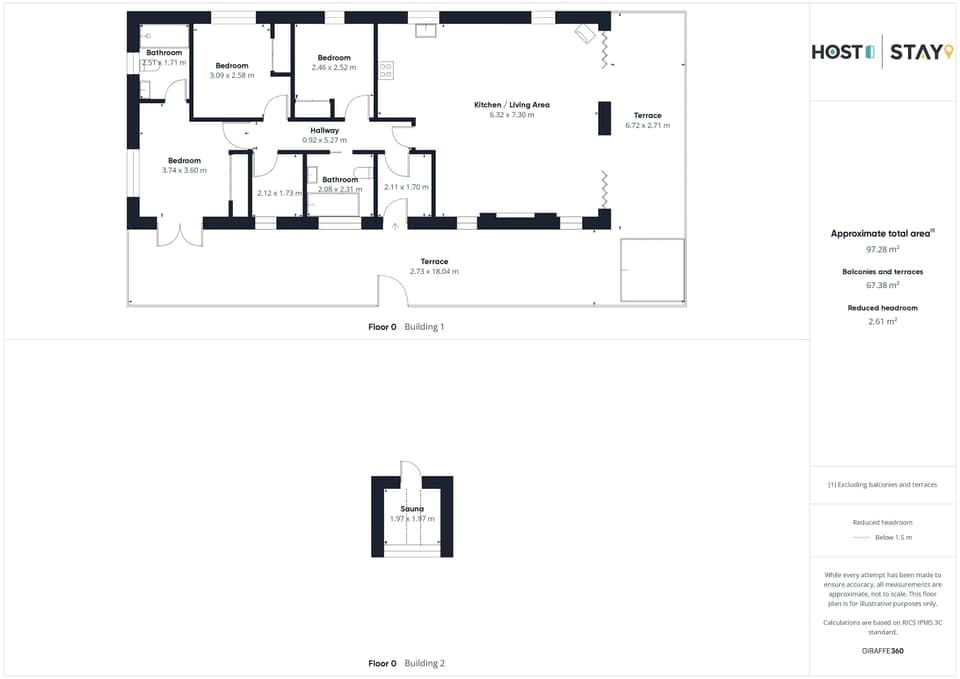
About this house rental
Nestled in Middlesbrough, this 3-bedroom, 2-bathroom vacation home brings it all within your reach. Fans of nature and the outdoors will love being 9 minutes by car from North York Moors National Park and 11 minutes from Roseberry Topping. Jump into your car and make short work of the 6-minute drive to Middlesbrough Golf Club or the 8-minute drive to Ormesby Hall (and enjoy the property's convenient covered onsite parking in the meantime).
While you're here, you can enjoy all the comforts of home and more, including free WiFi and a garden.
