House in Great Ayton
Reasons to book
About this house rental
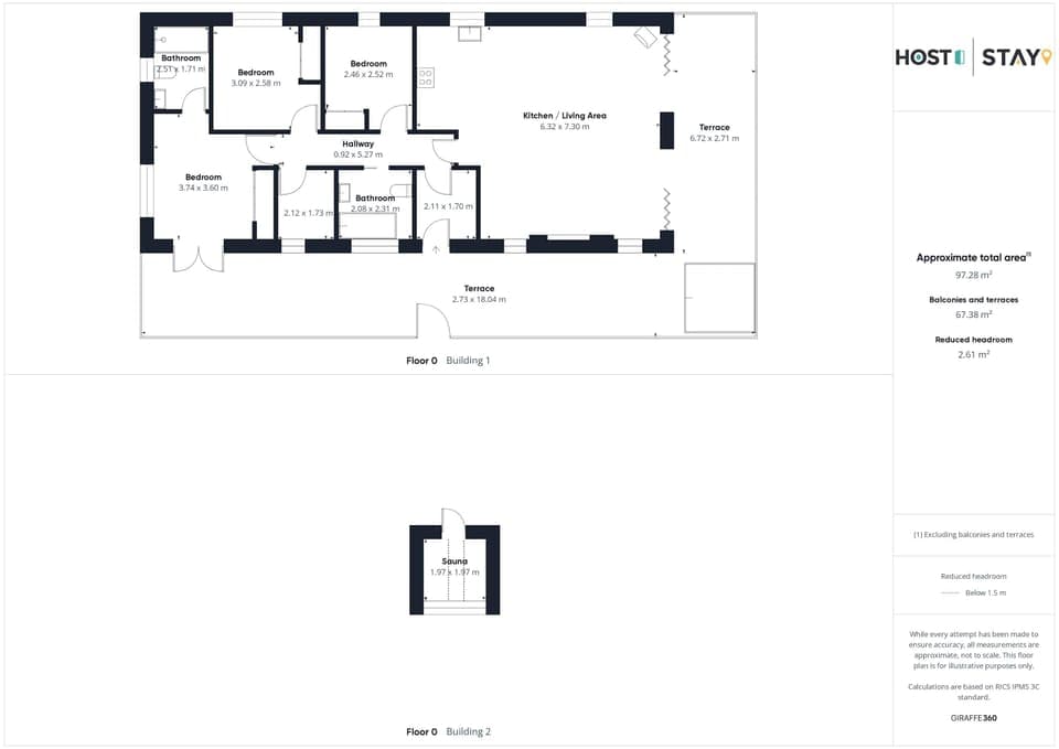
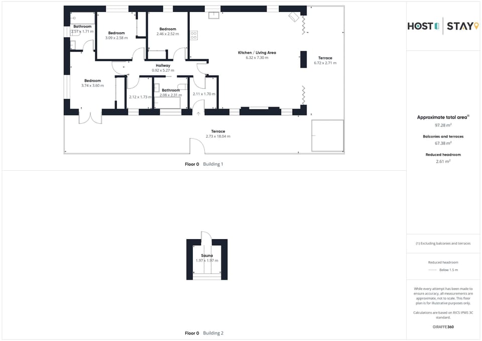
Located in Middlesbrough, this 3-bedroom, 2-bathroom vacation home lets you experience it all. Fans of nature and the outdoors will love being 9 minutes by car from North York Moors National Park and 11 minutes from Roseberry Topping. With convenient covered onsite parking, you'll be ready to make the 8-minute drive to Ormesby Hall or the 11-minute drive to Albert Park.
While you're here, you can enjoy all the comforts of home and more, including free WiFi and a garden.





