Apartment in La Clusaz
Reasons to book
About this apartment rental
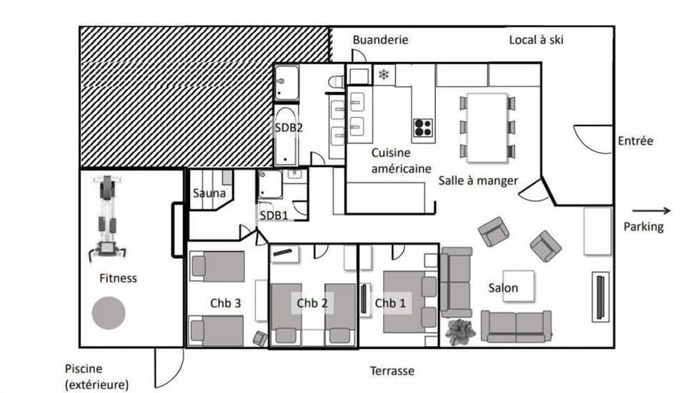
Appartement de 105 m² en rez de jardin situé dans un Chalet
- Cuisine ouverte sur salon de 39m²
- Chambre 1 : 11 m² avec 1 lit double de 140x200
- Chambre 2 : 11 m² avec 2 Lits simples 90X200
- Chambre 3 : 12 m² avec 2 Lits simples 90X200
- Salle de bain 1 avec baignoire et Wc
- Salle de bain 2 avec douche et Wc
- Jardin orientée au sud
- Local à ski privatif
- Salle de Fitness privative
- Jacuzzi de nage 2.5x4m en extérieur privatif
- Sauna 3 personnes privative
STATIONNEMENT
2 places de stationnement extérieur (3 en enfilade)
OU SE TROUVE MON LOGEMENT ET QU’Y A-T-IL AUTOUR ?
1443 Route du Danay 74450 Saint Jean de Sixt.
- Restaurants et commerces à 1,6 km
- Superette à 1,6 km
- Remontés mécaniques à 4 km (La Clusaz)
- Arrêt du bus-navette gratuite à 1.6km
- Gare routière à 1.6 km
- Fréquence des navettes Le Grand Bornand / Saint Jean / La Clusaz : 30 minutes
- Temps de parcours jusqu'aux stations la Clusaz ou Le Grand Bornand : inférieur à 10 minutes et selon la circulation
- Cours de ski : Il y a différents départs de cours de ski. Cela varie selon le moment de l’année et le type de cours. Nous vous invitons à prendre contact avec l’école en leur précisant l’adresse de votre hébergement.
QUELS EQUIPEMENTS TROUVE T-ON DANS L'HEBERGEMENT ?
Appareil à fondue / Appareil à Raclette / Baignoire pour bébés / Balcon / Balcon / Terrasse / Barbecue électrique / Grill / Bouilloire / Cafetière filtre / Casier à ski / Chaise haute/ Rehausseur / Congélateur / compartiment congélation / Détecteur de fumée / Détecteur de monoxyde de carbone / Lecteur DVD / Enceinte Bluetooth / Extincteur / Fer à repasser / Four / Grille pain / Jardin / Lave linge / Lave-vaisselle / Lit de voyage pour bébés / Local ski / Micro-ondes / Parasol / Plaques de cuisson / Réfrigérateur / Sèche cheveux / Sèche linge / Télévision / Ustensiles de cuisine / Wifi / Mobilier de jardin
COMMENT SE FAIT LA REMISE DES CLÉS ?
L'accueil et la remise des clés se fait sur place à partir de 16h ou avant si votre logement est déjà prêt.
LE MÉNAGE EST INCLUS :
Le ménage de fin de séjour ne comprend pas la cuisine (vaisselle, frigo, plaques... rangées, nettoyées), les poubelles à jeter, et les éventuelles cendres et vitre de la cheminée.
/!\ LE LINGE N’EST PAS INCLUS :
Le linge n’est pas inclus dans cette réservation : vous devez venir avec votre propre linge de maison.
Ce service est proposé en option. À réserver directement auprès de la Conciergerie des Aravis à 27.5€ par personne
NB : La largeur des lits est indiquée dans le descriptif de l’hébergement. Les lits sont équipés de couettes et oreillers carrés (couette simple standard 140 x 190, couette double standard 220 x 240).
LES ANIMAUX SONT-ILS ACCEPTÉS?
Nous n'acceptons pas les Chats
1 chien maximum peut être accepté sur demande et sous 3 conditions :
- Les voyageurs doivent enlever les poils à leur départ ( = Il vous faudra passer l'aspirateur)
- Ils sont interdits de canapé, lit, fauteuil etc...
- Ils ne peuvent pas rester seuls dans l'appartement.
Ça peut paraître rigide, mais nous avons eu trop d'abus. Merci pour votre compréhension.
BON À SAVOIR, RÈGLES DU CHALETS et CONDITIONS
- L’hébergement est non-fumeur et pas de bruit entre 22h et 8h
- L'heure de départ est 10h maximum
- N'oubliez pas votre chéquier pour le dépôt de garantie (non encaissé)
- Autre particularité de l'hebergement : vous ne disposez pas de la totalité du chalet mais uniquement du rez de jardin. Le jacuzzi, la salle de fitness et le sauna sont exclusivement pour cet appartement
/!\ Nous ne sommes pas en capacité de fournir : shampoing, liquide vaisselle, Huile vinaigre sel et poivre
Nous sommes à votre disposition pour plus de précisions.
LA CONCIERGERIE DES ARAVIS





