Villa in Cruz Bay
Reasons to book
About this villa rental
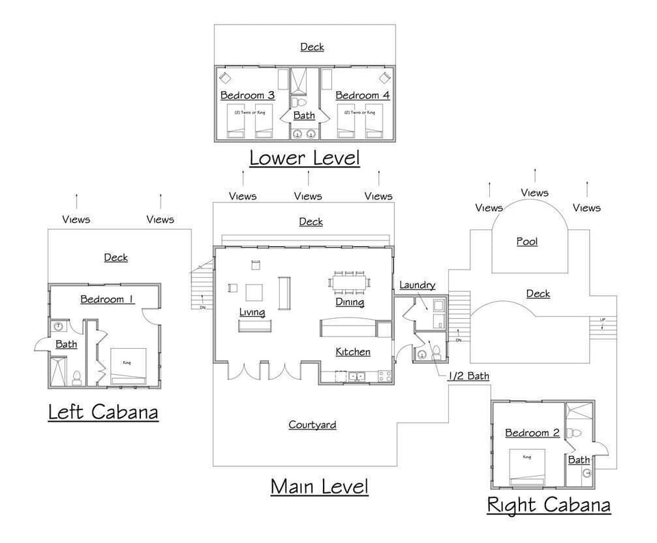
Upon arrival, you'll park above the great house and descend into a beautifully sheltered garden courtyard, where tranquility awaits. The upper level of the great house boasts an expansive great room designed for relaxation and entertaining, featuring living, dining, and kitchen areas, as well as a convenient half bath and laundry room.
Inside, you'll be captivated by the elegant native stonework, soaring cathedral ceilings with exposed beams, charming terra cotta tiled floors, and carefully selected furniture complemented by native artwork. Step out onto the impressive 450 sq ft sun deck on the south side and soak in breathtaking views that take your breath away.
On opposite sides of the great room are two bedroom cabanas, each with a king bed and ensuite bath. External stairways guide you to the lower level, where two inviting bedrooms, a shared bath, and a serene deck await. The pool, nestled in a beautifully landscaped garden setting in front of the west cabana, invites relaxation, while additional private sun decks—including two off the great house—offer the perfect spots for sunbathing. Courtyards, gardens, and inviting walkways gracefully connect each building and the pool area, creating a seamless experience.
Location: Strategically located on a spacious lot in the peaceful southwest corner of Hart Bay—just a quarter-mile from Great Cruz Bay—Rara Avis offers unparalleled privacy and serenity. This property sits at the end of a private drive, where you can relish the soothing sounds of the ocean waves. Immerse yourself in peace while being just minutes away from the vibrant dining, shopping, and nightlife experiences in Cruz Bay. The villa faces southeast, bathing your decks in sunlight from morning to late afternoon, and providing spectacular 180-degree views of St. John's pristine south coast.
Living and Dining: Inside, the living and dining spaces exude the charm of a centuries-old Spanish or Italian villa, featuring a fusion of antique and designer furnishings that strike a perfect balance of comfort and style. Enjoy the spacious deck through screened sliding glass doors that encourage a refreshing indoor-outdoor lifestyle.
Host meals at the mahogany dining table that comfortably seats 6-8, or opt for al fresco dining on the sheltered garden patio, perfect for enjoying the Caribbean air.
Kitchen: The kitchen caters to your culinary needs with a 4-burner stove and oven, refrigerator/freezer, dishwasher, microwave, blender, coffee maker, toaster, and a curated selection of dinnerware and cookware. You’ll also find a gas barbeque grill for delightful outdoor cooking.
Bedrooms: Accommodations include two spacious cabanas—both featuring king beds—offering the ultimate in privacy and picturesque views, each with a tiled bath and a charming private deck ideal for serene morning coffee. The lower level of the great house promotes intimacy with two guest bedrooms (twins that convert to a king) sharing a bath and a convenient half bath located off the kitchen.
Rara Avis captures the essence of Caribbean living, surrounded by captivating natural beauty and effortless elegance.





