House in Windermere
Reasons to book
About this house rental
If you’re looking for a place to stay in the heart of Windermere in the Lake District, look no further than the beautiful Hovera Cottage. This stunning Victorian house has been transformed with modern and stylish interiors, making it the perfect setting for families and groups of friends. With space for up to eight guests, Hovera Cottage offers a central location just yards from the bustling town centre and a peaceful, high-end experience.
The Space:
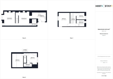
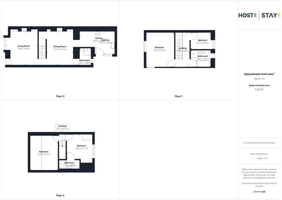
Hovera Cottage has everything you need for a relaxing getaway: four bedrooms (one with an ensuite shower room), a dining room seating eight guests, and a cosy living room with a log burner. The spacious, fully equipped kitchen is perfect for everything from socialising with loved ones to enjoying a peaceful morning coffee to yourself. Whether you’re visiting for a relaxing retreat or to explore the picturesque landscapes, this beautiful home is designed for a comfortable and memorable stay.
You’ll find beautifully appointed living spaces in Hovera Cottage. The cosy living room offers a warm and homely spot to unwind after a day of exploring Windermere and the Lake District. With a comfortable corner sofa and stylish armchair, it’s the perfect place to curl up with a book or catch up on your favourite shows on the flat-screen TV.
The stunning kitchen at Hovera Cottage is a cook's dream, featuring premium Miele appliances for effortless meal preparation. Fully stocked with all the essentials - including an oven, hob, microwave, kettle, and toaster - you’ll have everything you need for a home-cooked meal or casual dining at your fingertips. The kitchen is also equipped with high-end Robert Welch knives, ensuring precision and ease when preparing ingredients.
Enjoy your meals together with your loved ones in the dining room, which is furnished with exquisite Atkin and Thyme furniture. Offering a cosy and homely spot to unwind and socialise, you can fire up the log burner and make wonderful memories here.
A washing machine, dryer, dishwasher, and shower room are also provided on the ground floor for extra convenience.
Sink into plush pillows and a cosy bed in one of Hovera Cottage’s stylish bedrooms - your perfect escape after a day exploring Windermere. The cottage has two bedrooms on the first floor and a further two on the second floor.
The first bedroom is a spacious king room with large, panelled windows looking out to the front of the property. A perfect setup for little ones, the second bedroom has a single bunk bed and plenty of storage space. Upstairs on the second floor, there is a spacious king bedroom with an ensuite shower room and incredible views over the rooftops to the fells. Ideal for kids or friends, the last bedroom has two inviting twin beds and a sloped ceiling with skylight windows for the ultimate cosy space.
Hovera Cottage has three sleek and modern bathrooms, including one en-suite, offering comfort and convenience throughout your stay. The ground floor shower room is a well-designed space with a walk-in shower, sink, and WC. Convenient for the entire family, the family bathroom offers a bathtub, a walk-in dual shower with a rain head and handset, sink, and WC. The second-floor king bedroom includes an en-suite bathroom with a shower, WC, and sink.
If you are looking for a restful and wholesome stay in the beautiful location of Windermere, Hovera Cottage is the perfect choice.
Guest Access:
Guests have access to the full property for the duration of their stay.
The keys to Hovera Cottage are accessed via a secure key safe and full details will be provided shortly before your arrival date.
There is a parking pass available for one vehicle to park in a nearby public car park, with pay & dispaly options for those travelling with more than one vehicle.
A starter pack for the log burner will be provided for your arrival, additional supplies can be purchased from local stores to the property.
The Neighborhood:
Nestled in the stunning landscape of the Lake District National Park, Windermere is a charming and picturesque town that offers an unforgettable getaway. Known for its tranquil lakes, breathtaking fells, and quintessential English charm, Windermere is the perfect destination for nature lovers, adventure seekers, and those simply looking to unwind.
Just moments away, England's largest natural lake, Lake Windermere, is ideal for boating, paddleboarding, or relaxing by the shore. Explore scenic walking trails such as Orrest Head (0.3 miles away) for panoramic views or embark on more challenging hikes to the surrounding fells.
Discover the delightful village of Bowness-on-Windermere, brimming with boutique shops, cosy cafes, and traditional pubs. Visit local landmarks like the World of Beatrix Potter Attraction or historic homes like Blackwell, an Arts & Crafts masterpiece.
When staying in Windermere, you can also visit Ambleside, a picturesque town full of outdoor clothing shops, unique shops, traditional pubs and Michelin star restaurants.
Windermere boasts a variety of restaurants, from fine dining establishments to friendly local eateries serving hearty Cumbrian fare. Stroll through the town to explore unique artisan shops, galleries, and markets.
Families will love the variety of attractions, including lake cruises, steam railway rides, and wildlife parks. With plenty of open space and fresh air, there’s something to entertain everyone.
Come and experience the beauty and charm of Windermere – where every day feels like a postcard come to life.
Getting Around:
While offering a serene retreat, Windermere is easily accessible via road and rail, making it a convenient base for exploring the wider Lake District. Whether you’re planning a romantic escape, a family holiday, or an outdoor adventure, Windermere has something for everyone.
Windermere Train Station (0.1 miles away) has direct services operating to Bolton, Chorley, Kendal, Lancaster, Manchester and Preston. You'll also find connecting routes to London from Lancaster, Manchester and Preston.
A number of bus routes operate in Windermere offering direct access to Carnforth, Kendal, Keswick, Lancaster, Morecambe and Ulverston.
Cumbria and the Lake District are within easy reach of Manchester Airport. Airports in Liverpool, Newcastle, Glasgow and Edinburgh are also only a couple of hours from Windermere by rail or car.
Interaction with Guests:
We're always available for our guests so do not hesitate to get in touch.


























