House in Wisconsin
Reasons to book
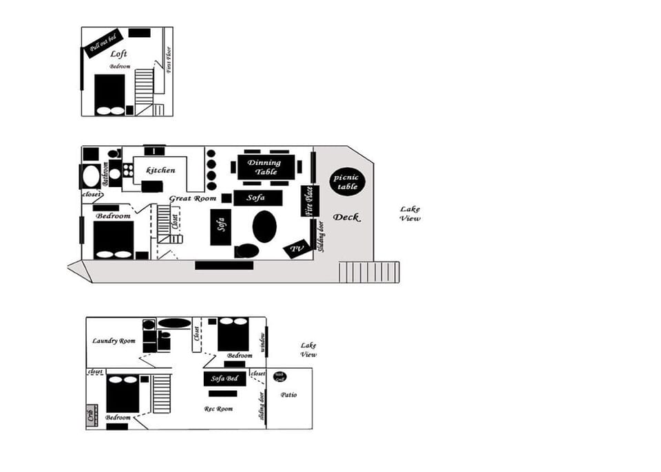
About this house rental
Our property is Chalet #3 at the former Zaugg's Resort. It is a private home with 150 feet of lake front access. It is secluded but only 10 minutes from downtown Eagle River. Our space is perfect for a family getaway or getaway with friends. (We also own Chalet #2 if you need space for more than 15. VRBO listing 2012662) Each bedroom has a queen bed plus multiple couches and futons are available to make your group comfortable after a busy day on the lake.
A fully equipped kitchen inside with a charcoal grill in the back patio. You can enjoy a fire in the fire pit in the backyard during the summer or a fire in the fireplace in the fall and winter. Dry fire wood is included!
Anvil Lake is called the "Jewel of the Northwoods". It is a sandy bottom lake where you can enjoy swimming, fishing, boating or simply relaxing. During the summer months (Memorial Day to Labor Day), we provide a boat with a 8 hp motor per home. We also share the following with our other home right next to this one: 2 canoes, a pontoon pedal boat, 2 stand up paddle boards, 3 kayaks and a classic swim raft. A tennis court/basketball court/pickle ball court and playground are also available for use. We are also close to hiking trails at Chequamegon-Nicolet National Forest, many snowmobile trails for winter fun and ATV trails for anytime in between. Stay with us and enjoy all the seasons of Eagle River!
Low Season: September 12, 2020 - May 28, 2021 we book minimum 3 nights, check in any day
High Season: Memorial Day weekned - Labor Day weekend we book weekly Saturday to Saturday





