House in Bourgogne-Franche-Comté
Reasons to book
About this house rental
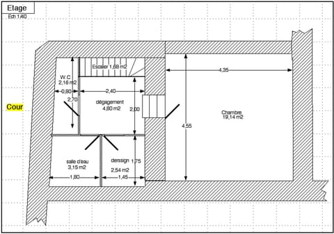
Upstairs: bathroom. W. C. freelancers. Dressing room (hair dryer, table and iron). Bedroom with air conditioner, large 180x200 bed (2 twin beds of 90).
Communicating with the living room, an old workshop has been transformed into a living room or winter garden depending on the season, it is equipped with a garden furniture with a heated parasol, an electric barbecue and a ping-pong table. -pong.
The courtyard is closed and gives access to the old workshop, the garage and the garden
In the garden you have an arbor with a garden furniture, a 2 sun loungers and charcoal barbecue.
Your pet (cat or dog) is welcome.
Optional services on request:
End of stay cleaning 40 €.
Sheets rental: € 7 per person,
Rental of bathroom linen, € 5 per person.
Baby equipment on request: 1 travel cot, 1 high chair, etc.
Given the electrical equipment (air conditioning, heated parasol) available to you and so as not to penalize you with overvalued rental prices, our price includes an electricity consumption package of 8kW / day, which by experience is sufficient for a stay of 2 people in period excluding heating.
On site in Nuits-sur-Armançon, you have on site, a bakery, a herbalist, a postal agency, a car garage, and a service station.
In Ravières, a village separated from Nuits by Armançon and the Burgundy Canal, you will find a bakery, bookstore, tobacco shop, restaurants, bank, dentist, nurse,
In Ancy-le-Franc located less than 10 minutes away, you will have at your disposal a supermarket as well as all the shops and services, doctors, pharmacy, etc.
Places / sites to visit in the surroundings:
Our corner of Burgundy offers an important historical and architectural heritage: Villages classified among the most beautiful villages in France, Noyers-sur-Serein, Flavigny-sur-Ozerain and Vézelay which with its basilica and its eternal hill are also classified as world heritage. from UNECO, such as Fontenay Abbey.
They are also the historic site of Alésia and the Renaissance castles of Ancy-le-Franc, Tanlay with its golf course, Maulnes, Nuits or Bussy-Rabutin. In Guédelon it is a medieval castle which is under construction in the 21st century ..., It is a country which also offers hundreds of kilometers of paths and trails for hikers and cyclists.
Our lodgings ideally located in the middle of a route of almost 100 km of the cycle route along the Burgundy Canal, doubled on this section by the provincial road 905 and the Paris-Lyon SNCF line, served by 4 stations. The TER (ten trains + bike each day in both directions) will allow you to go by bike or by train to make the visits and hikes you have chosen and return without worrying about having to assume your strength.
The tourist circuits to discover the riches of our region and also complete itineraries on and off the cycle route of the Burgundy canal are visible on "Bienvenue en bourgogne point fr"
As for the river, Armançon and the Burgundy canal, they will delight fishermen.




































