Bruern Cottages - Shipton (sleeps 6 + 2)

Interior
Private kitchen
Exterior detail
Outdoor dining
Outdoor dining
Don't miss out! Price and availability may change

Cottage in West Oxfordshire District

7 guests · 3 bedrooms · 3 baths

Reasons to book

Top-tier experienceA high end property in this area
Book with confidenceWe partner with the top travel sites so you know you're getting a great deal on the perfect rental
Includes essentials and more

About this cottage rental

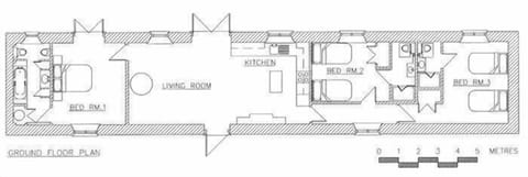
Single floor cottage without steps.
All bedrooms – one double, two twin rooms – with ensuite bath or shower rooms.
Master bedroom with double four poster and ensuite bathroom
Big open plan drawing room/dining room/kitchen.
Large, glamorous Gustavian style ceramic wood burning stove.
Kitchen with island unit, Belfast sink with waste disposal, hob and oven, dishwasher, fridge freezer, washing machine and tumble dryer, microwave, dish rack.
Big orchard garden, with apple trees, lawn and borders: garden furniture, umbrella and barbeque.
Children’s play corner, shared with Booker’s cottage seesaw and swings.
Sleeps 6, and has the option of adding 2 cots or camp beds.

Amenities at Bruern Cottages - Shipton (sleeps 6 + 2)

Non-smoking
No pets allowed
Family friendly

Map of West Oxfordshire District


$$$$
vrbo logo

FAQs

Is parking included with this cottage?

Parking is not specified as an available amenity at Bruern Cottages - Shipton (sleeps 6 + 2). For more information, we encourage you to contact the property about where to park.

Is there a pool at this cottage?

We didn’t find pool listed as an amenity for this cottage. It may be worth double checking if a pool is important for your stay.

Is Bruern Cottages - Shipton (sleeps 6 + 2) pet friendly?

Unfortunately, this cottage is not pet-friendly. Try searching again and filter for "Pets Allowed"

What amenities are available at Bruern Cottages - Shipton (sleeps 6 + 2)?

We found 3 amenities for this rental. This includes non-smoking, no pets allowed, and family friendly.


Explore similar stays in West Oxfordshire District

Explore all rentals in West Oxfordshire District