Apartment in Val Thorens
Reasons to book
About this apartment rental
LOCATION
In Val Thorens in the Arcelle residence, right in the center, departure and return on skis. West exposure so quiet side.
Apartment located on the 6th floor, near the sports center; swimming pool, sauna, balneotherapy, hammam, basketball, badminton, table tennis, volleyball, squash, bodybuilding & fitness area, Fun Park (children's playroom) and the Caron shopping mall.
Parking P1 is located just under the residence, which will allow you to unload your luggage without difficulty directly accessible by the residence's elevator. This closed and secure parking is equipped with charging stations for electric cars. It is chargeable; around €80 per week to be booked independently on valthoparc.com)
The apartment is located 50m from the bus station.
Close to all shops, Carrefour supermarket, bakery, ski passes, restaurants, ski rental shop....
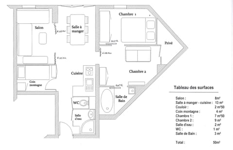
BEDROOM:
1 bedroom with 1 bed 140x190cm
1 bedroom with 1 sofa bed 120x190cm with 1 TV
1 bedroom with bunk beds 2 times 90x190
LIVING ROOM:
1 pull-out sofa 2 beds 90x190 twin TV
DINING ROOM; Very large table, chairs and stools
KITCHEN:
silent dishwasher, induction hob, refrigerator, coffee machine, NESPRESSO machine, microwave, raclette machines...
BATHROOM:
Bathtub and sink
SHOWER ROOM
Shower and sink
Separate toilet
INTERNET wifi available in the apartment with daily or weekly subscription (independent service provider)
SHEETS AND TOWELS
Sheets and linens not provided but can be booked with a supplement from a service provider
Cleaning is included in the rental (you will have to leave the kitchen clean (dishes clean and put away in particular), empty the refrigerator and dishwasher and take out the trash.)
Val Thorens, the highest resort in Europe and the highest point of the 3 Valleys area, has the largest ski area with more than 600 km of slopes. The resort is renowned for the quality of its snow. Since then, it has continued to innovate to satisfy the greatest number of skiing enthusiasts: accessibility at all levels, performance and innovation of ski lifts, festive atmosphere, numerous activities.






















