Apartment in Avoriaz
Reasons to book
About this apartment rental
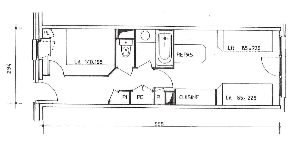
The ski departure allows you to easily reach the different sectors of the Portes du Soleil ski area and offers direct access to the Super Morzine and Lil'Stash sectors, perfect for families and/or beginner skiers. Surface area : about 26 m². Ground floor. Orientation : West. View mountain. Living room with balcony, 2 sofa-beds. Bedroom with double bed. Kitchenette with kettle, toaster, dishwasher, microwave, 2 vitroceramics cooking rings, fridge. Bathroom with bath-tub. Separated WC.




































