Apartment in Les Avanchers-Valmorel
Reasons to book
About this apartment rental
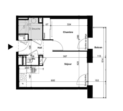
In winter, the resort offers a ski area of over 160 km, accessible on foot from the town centre. Surface area : about 34 m². 1st floor. Orientation : South, West. View mountain. Living room with BZ-sofa. Bedroom with double bed (160*200). Kitchenette with kettle, coffee machine (à filtre et nespresso), oven, toaster, dishwasher, microwave, 2 induction cooking rings, fridge. Shower room. Separated WC. Balcony. vacuum cleaner, washing machine.







![Holiday Home Exterior [winter]](https://vr-thumbs.vacationrenter.com/480/vrbo/101290630/00e1c9.jpg)




























