House in Bourton-on-the-Water
Reasons to book
About this house rental
The house has been thoughtfully refurbished to preserve its historic charm while incorporating modern comforts. Enjoy underfloor heating in most areas, a high-speed fibre-optic WiFi mesh, and instant boiling water, among other conveniences.
Built from beautiful Cotswold stone, Chartres House boasts impressive proportions, mullioned windows and a striking garden room.
The space
The accommodation includes a large lounge, separate dining room, garden room, boot room, GF wc. and utility as well as a beautiful kitchen with all appliances. Laundry facilities are in the separate utility room.
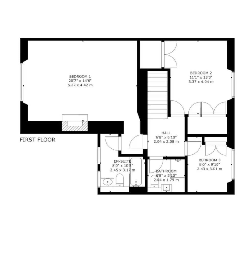
To the first floor are three bedrooms, one with ensuite and a separate bathroom with a large walk in shower.
There is plenty of storage in each bedroom and in the main bedroom is a workspace.
The property enjoys super fast broadband, included in your stay.
There are two private parking spaces for the property and it is a two minute walk into the centre of this beautiful Cotswold village.
Guest access
The whole house is yours to enjoy, including the private garden and outside seating for those warm summer evenings.

























