House in Ediger-Eller
Reasons to book
About this house rental
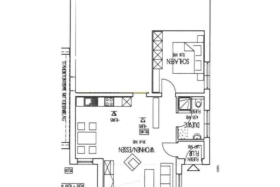
Layout:
These costs are mandatory and charged on site. They are not included in the rental price.:
Bed linen; Present
Electricity; Included
Optional services that you can arrange on site:
Bath towels; Present
Cot; free (on request)
Heating; Included
![Holiday Home Exterior [summer]](https://thumbs.vogo.com/480/expedia/105437356/e40821.jpg)




