Apartment in La Clusaz
Reasons to book
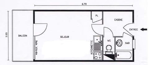
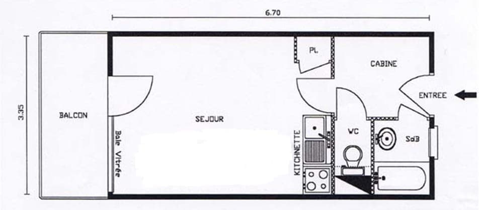
About this apartment rental
- Entrance with 2 bunk beds 70 cm x 1 pers. (upper bed forbidden under 6 years old) (3.51 sqm)
- Living room with balcony east, sofa-bed 130 cm x 2 pers. (15.13 sqm)
- Kitchen area (ceramic hob 4 zones, mini oven, refrigerator 122 L, cooker hood, dishwasher)
- Bathroom with window ouest (bath, sink) (1.91 sqm)
- Toilet (0.96 sqm)
Level : 1st floor without lift
Individual garage x 1 (L 4.96m x W 2.17m x H 1.85m)
Ski locker / No wifi (wifi router rental possible)
No pets allowed / Non-smoking flat
Not accessible to people with reduced mobility
BED LINEN, PILLOWCASES AND BATH MAT ARE PROVIDED (except towels and dish towel)
Optional services to be paid on site and to be booked before your arrival:
. Wifi box : 40.0 € per stay
. Baby cot : 15.0 € per stay
Property managed by a professional. Unless stated, services such as cleaning, bed linen, towels etc. are not included in the price of this rental. If pets are allowed (information in the advertisement), charges may be applicable.
Only equipment mentioned in this advertisement are present. Equipment not mentioned are not considered to be present. Unless there is an electric charging station in the accommodation, charging electric vehicles is prohibited.
"JANU", small residence with 15 accommodations located in the valley of the Aravis, locality "Les Fiaux", at 1,5 km from the center of the resort linked by free bus (stop at 450m).
At the side of the ski run on the way back from "Beauregard", "les Joux" and "Laquais" allowing access to all skiable massifs.
At 2km from the bus station and 35 km from the Annecy train station.




































