House in Central Denmark Region
Reasons to book
About this house rental
Close to fishing, the sea, and more, this pet-friendly vacation home brings it all within reach. Limfjord is just a short walk away, so you can leave your car at the property, which offers onsite parking, or jump in your vehicle to make short work of the 3-minute drive to Lemvig Golf Club.
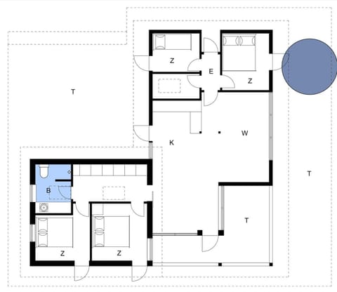
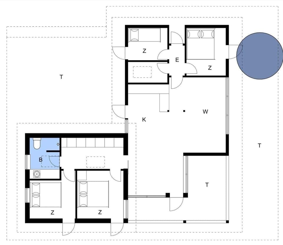
Once you get back to this 1184-sq-ft vacation home, you can enjoy your surroundings with the porch or lanai and BBQ grill. For a change of scenery, come inside and enjoy the WiFi and TV.
The kitchen is equipped with an oven, a stovetop, and a refrigerator, as well as a coffee maker and a microwave. And you won't have to pack extra clothes, because you'll also have access to laundry facilities. Other amenities include an ironing board and a dining table.




































