6 guests · 2 bedrooms · 1 bath
Well priced for this locationPriced under area average
Book with confidenceWe partner with the top travel sites so you know you're getting a great deal on the perfect rental
Includes essentials and more
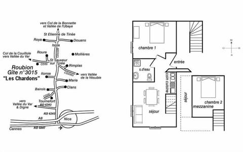
1st floor. - Living room with sofa bed for 2 people (140x190) and TV, kitchen area. - Bedroom with 1 double bed (140x190). - Mezzanine bedroom with 2 single beds (90x190). - Shower room/WC. - Electric heating. Charges included. Cleaning package on request. Tourist tax extra. - Warning: NO wifi. 4G available depending on operator. Bed/toilet/house linen are NOT provided. - In the event of late arrival (after 6:30 p.m.), a supplement of 15 euros may be requested, please contact the Roubion Tourist Office for more information. Communal gîte in a village house with four apartments. Charm of old stones, beauty of the mountains, joy of winter sports, Roubion is a summer/winter resort labeled resort-village. An essential site for mountain bike enthusiasts thanks to the Buisses chairlift (2km from the village), around ten trails, from easy green to very technical black, welcome beginners or downhill enthusiasts and to complete this area, Roubion now offers the rental of electrically assisted mountain bikes for your walks in the forests… Possibility of climbing and via ferrata in the village. Winter sports with 30 km of alpine ski slopes and 12 km of Nordic skiing. We remind you that our animal friends are limited to one animal per rental. THANKS. All information on www.roubion.com Apartment in the heart of a typical Tinée Mercantour village, 2km from Buisses station
Family friendly
$$$$
Don't miss out! Price and availability may change
FAQs
Is parking included with this house?
Parking is not specified as an available amenity at Les Chardons - ROUBION. For more information, we encourage you to contact the property about where to park.
Is there a pool at this house?
We didn’t find pool listed as an amenity for this house. It may be worth double checking if a pool is important for your stay.
Is Les Chardons - ROUBION pet friendly?
Unfortunately, this house is not pet-friendly. Try searching again and filter for "Pets Allowed"
What amenities are available at Les Chardons - ROUBION?
We found 1 amenities for this rental. This includes , and family friendly.





