Chalet in Fouesnant
Reasons to book
About this chalet rental
Located just 900 metres from fine sandy beaches, this fully furnished house welcomes you for a comfortable stay in the heart of the Breton Riviera. Nestled in the charming neighbourhood of Beg-Meil in Fouesnant, it can accommodate up to 6 travellers (4 adults and 2 children) and offers everything necessary for relaxing holidays with family or friends. Fully equipped, the house has a large enclosed garden, ideal for letting children play safely or sharing friendly barbecues on summer evenings. After a day exploring the coastal paths of the GR34, on foot or by bicycle, you will appreciate the calm and comfort of this warm house.
Ideal starting point for discovering Southern Finistère: set off to explore the magnificent beaches of Cap-Coz, the coves of Beg-Meil, or treat yourself to an unforgettable escape to the Glénan archipelago.
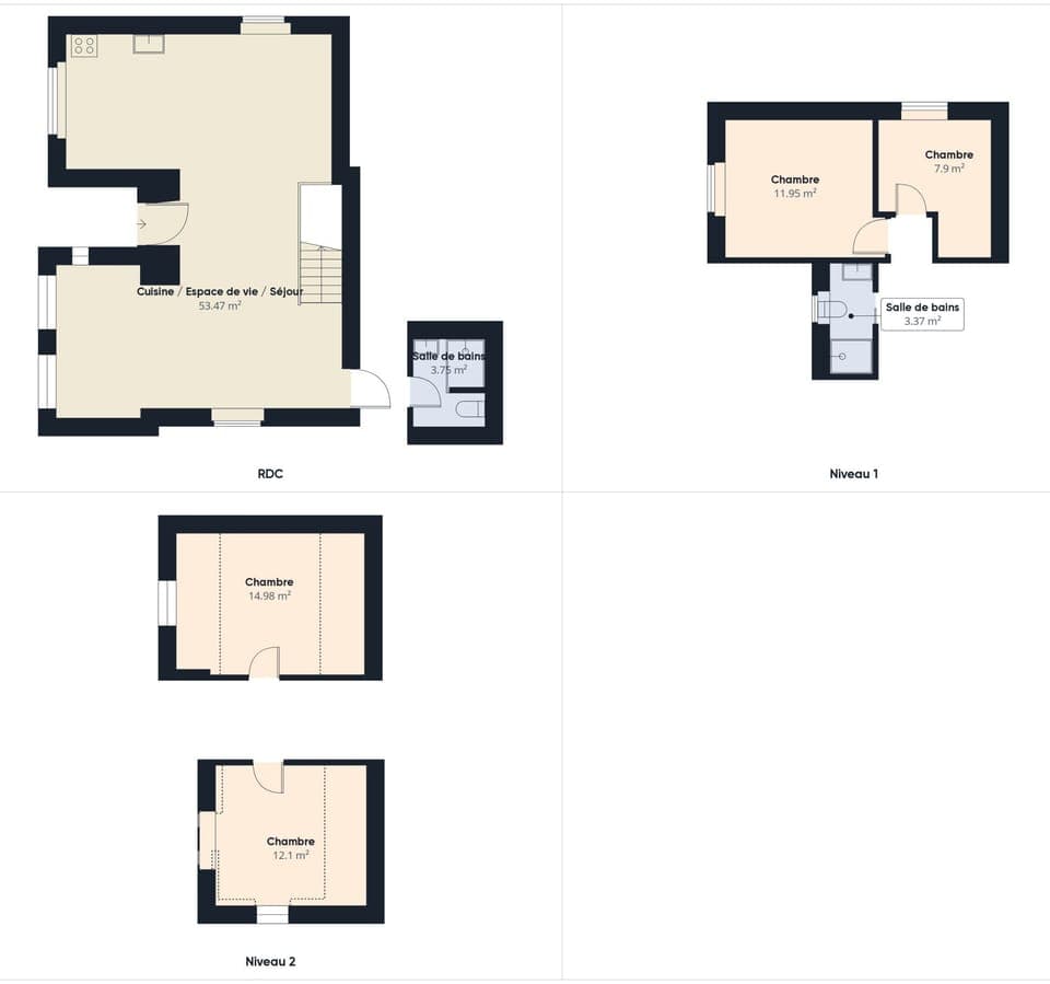
Enter through the entrance door and discover a warm living area of over 50m2. The open, modern and fully equipped kitchen (refrigerator, freezer, oven, microwave, dishwasher) provides you with everything necessary for cooking. For your breakfasts, you will also find a toaster, a kettle and a filter coffee maker. Share your meals around the dining table for 6 people or enjoy the garden furniture to have lunch outside on beautiful days. In the evening, gather in the living area, comfortably seated on sofas and armchairs around the coffee table. A bathroom with shower and toilet completes the ground floor.
On the first floor are two bedrooms and a bathroom with WC. The first is a children's bedroom with a bunk bed and toys available. The second has a single bed (90x190 cm).
On the second floor, you will find two other bedrooms and an independent toilet. A master bedroom equipped with a double bed (140x190 cm) and a bedroom with two single beds (90x190 cm).
For added comfort, a washing machine and tumble dryer are at your disposal.
There is space to park up to 3 cars in the courtyard. You can also store bicycles in the garage.
Ideally located for families and close to the sea, the rental is located at:
- 900 m from Kerveltrec beach
- 1 km from Bot-Conan beach
- 350 m from the supermarket "Cocci Market",
- 900 m from the restaurant "La Boite à Sardines",
- 950 m from the restaurant "La Casa Pépé",
- 1 km from the restaurant "L'Olivier",
- 2 km from the Beg Meil point
- 3 km from the town of Fouesnant
- 3 km from the Nautical Centre Fouesnant Cornouaille
- 3 km from the Balnéides swimming pool
- 5 km from the supermarket "E.Leclerc PLEUVEN",
- 7 km from the "GLAZ AVENTURES" theme park,
- 7 km from the Cornouaille Golf Domain
- 12 km from the "Tytaz Wakepark" water park,
- 17 km from the Cornouaille Hospital Centre
Located on the south coast of Finistère, the commune of Fouesnant captivates with its preserved landscapes between fine sandy beaches, forests and marshes. Its iconic district, Beg-Meil, offers an idyllic setting with its turquoise-watered coves and coastal paths perfect for hiking. A former fishing village, it has managed to preserve its authentic charm while offering a dynamic seaside atmosphere. Between water sports, seafood tasting and walks facing the Glénan archipelago, Fouesnant promises a rejuvenating stay. A true haven of peace for nature and seaside relaxation enthusiasts!
This location benefits from a concierge service with a team available throughout the stay for personalised services.
During the stay, there will be no renewal of household linen, nor cleaning.
This holiday let does not have Wi-Fi connection.
This furnished accommodation is not suitable for people with reduced mobility.
Animals are not allowed in this rental.
The accommodation tax will be added to the rental amount and must be paid in advance of your stay.
REF: hoomy12384





