Atlantic Sunrise - Stunning 4BR Oceanfront 1/2 Duplex - Heart of Topsail Beach

Top rated by guests
South Ocean View from Top Floor Deck
1st Floor Covered Deck II
Streetside Exterior
Top Floor Streetside Bedroom ~King II
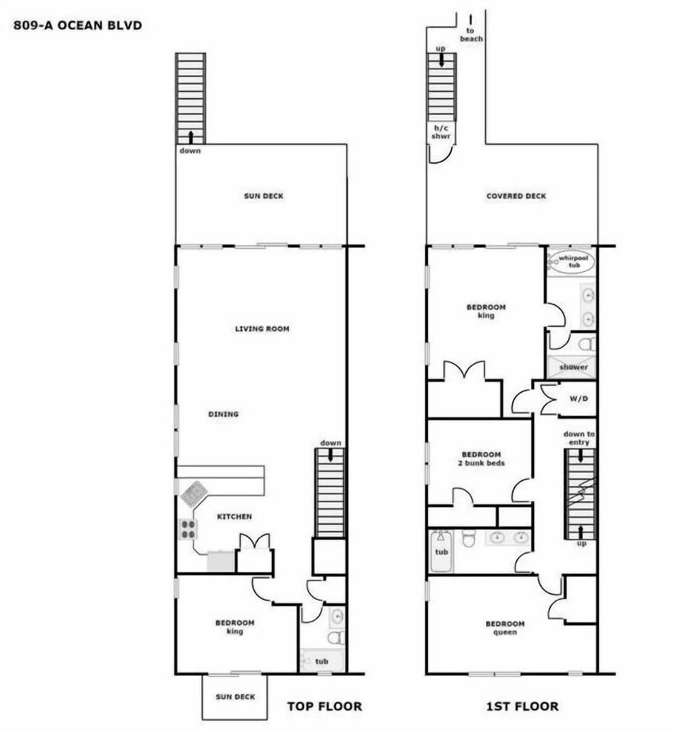
Atlantic Sunrise Floor Plan
review stars
8.8Excellent
(5 Ratings)
"We quite enjoyed our stay - great location, easy to walk to local shops and entertainment."
Clay H.
Don't miss out! Price and availability may change
8.8 / 10.0
Excellent(5 Ratings)

Apartment in Topsail Beach

8 guests · 4 bedrooms · 3 baths

Reasons to book

Guests love it hereGuests give this property a top rating
Top-tier experienceA high end property in this area
Book with confidenceWe partner with the top travel sites so you know you're getting a great deal on the perfect rental

About this apartment rental

This tastefully decorated north side of an oceanfront duplex boasts comfortable coastal living to the fullest! Come and enjoy magnificent sunrises over the ocean and take in the bird's eye view of the Jolly Roger Pier. This oceanfront home features the popular reverse floor plan. On the top level, enjoy gorgeous ocean views from the sun deck and from the lovely living room inside. The well-stocked kitchen and dining areas are also on this level. Being right in the heart of Topsail Beach, you can walk to shops, dining and entertainment. The home is beatifuly decorated and located for you to have an amazing stay!

Sweet Dreams: *Linens included for all reservations 7 nights, or longer.

Top Floor:

Street-Side Bedroom: King Bed; shares hall bathroom with tub/shower; private balcony

1st Floor:

Oceanfront Master Suite: King Bed; TV; private bathroom with whirlpool tub and shower; access to covered deck
Street-Side Bedroom: Queen Bed; TV; shares hall bathroom with tub/shower
Middle Bedroom: 2 Sets of Twin Bunk Beds; shares hall bathroom with tub/shower

Location:

Your vacation rental is located in the heart of Topsail Beach and just 6.4 miles south of the Surf City high rise bridge. You can walk to the gift shops, restaurants and Jolly Roger Pier. Also, don't overlook a trip to the nearby Missiles & More Museum while you're here and the Karen Beasley Sea Turtle Hospital on the mainland.

Amenities:

Linens are included for all reservations 7 nights or longer
Central Heat/Air
Keyless Entry
3 cable tvs, DVD player
Wireless Internet
Ipod docking station
Full kitchen with dishwasher & microwave
Washer/Dryer
2-person whirlpool tub
Ceiling fans
Telephone
Enclosed outside shower with hot & cold water
Carport w/wet weather entry
2 oceanfront sundecks with deck furniture and 1 soundview sundeck

Additional Property Information:

Smoke Free - No smoking allowed by anyone on the premises
Pet Free - No pets allowed by anyone on the premises

Trip Preparation:

Rental homes with Ward Realty all have minimum standards to make your stay be as close to home away from home as possible. All of our rentals include fully equipped kitchens, basic small appliances (microwaves, coffee makers, toasters, blenders), pillows, comforters/bedspreads, television(s), central heating/air, iron/ironing board and much more! See Ward Realty's website for a helpful list of what to bring with you to your rental. Please note that this home does not come with sheets or towels. You may bring your own or rent them through Ward Realty.

Disclaimer: Photos displayed on this website are intended to provide a general representation of our vacation rental properties and the surrounding areas. While some amenities may be pictured, they are for display purposes only.  Only those amenities listed on the website description, not in photos, are available.  While we strive to keep all images accurate and up to date, furnishings, décor, and amenities may change over time and may vary slightly from what is shown. Seasonal differences, weather conditions, and lighting may also affect the appearance of the property.   We do our best to present each rental honestly, but we cannot guarantee that every detail will be exactly as depicted. If you have specific questions or requirements, please contact us directly before booking.

Amenities at Atlantic Sunrise - Stunning 4BR Oceanfront 1/2 Duplex - Heart of Topsail Beach

Non-smoking
No pets allowed
Family friendly

Map of Topsail Beach


Ratings and reviews

8.8 / 10.0
Excellent(5 Ratings)
8.0 / 10.0Excellent·Apr 2021
The home itself was great! It was very clean and the view was stunning! Our kids loved Topsail! Please note they do not provide linens, towels, toilet paper, soap etc. I came down with three kids by myself because my husband joined us a couple days later and I had to go buy all the necessities after driving all day. I have stayed in VRBO’s all over the world and this is the first one that didn’t provide basic necessities to get you started.
10.0 / 10.0Outstanding·Apr 2021
We quite enjoyed our stay - great location, easy to walk to local shops and entertainment.
10.0 / 10.0Outstanding·Jun 2018
I was a little unsure about being close to the pier but this house was perfect for our family. We could watch the big boys fish on the pier (day or night) and watch the younger ones play mini golf across the road on the island side. You can walk to everything the center of town offers and never need your car unless you want to go to Surf City. The house itself is VERY nice with modern appliances and updated bathrooms. Everything was clean and the beds were comfy. A little surprised that linens aren't included but that appears to be the normal thing for all rentals on the island (not so on the gulf coast of Florida). But overall we loved this house and the location for our family. So much so we already booked it for 2019! Highly recommended.
8.0 / 10.0Excellent·Jun 2018
The house was beautiful and I would have stayed in it forever. The beach was beyond beautiful. Peaceful and lovely. Not crowded and just steps away from our deck. The weather was gorgeous. The only rain we had was in the night! You can't ask for better than that! We've hope to come back again next year. Our only reason for not giving 5 stars was the putt putt golf place directly across the street. It really wasn't bad, but, they did play loud music later at night and it interfered with listening to the ocean. I know that sounds hokey, but, I can play putt putt any time. I can't look at/listen to the ocean except on rare occasions. :)

$$$$
expedia logo

FAQs

Is parking included with this apartment?

Parking is not specified as an available amenity at Atlantic Sunrise - Stunning 4BR Oceanfront 1/2 Duplex - Heart of Topsail Beach. For more information, we encourage you to contact the property about where to park.

Is there a pool at this apartment?

We didn’t find pool listed as an amenity for this apartment. It may be worth double checking if a pool is important for your stay.

Is Atlantic Sunrise - Stunning 4BR Oceanfront 1/2 Duplex - Heart of Topsail Beach pet friendly?

Unfortunately, this apartment is not pet-friendly. Try searching again and filter for "Pets Allowed"

What amenities are available at Atlantic Sunrise - Stunning 4BR Oceanfront 1/2 Duplex - Heart of Topsail Beach?

We found 3 amenities for this rental. This includes non-smoking, no pets allowed, and family friendly.


Explore similar stays in Topsail Beach

Explore all stays