Apartment in Topsail Beach
Reasons to book
About this apartment rental
Sweet Dreams: *Linens included for all reservations 7 nights, or longer.
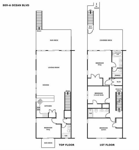
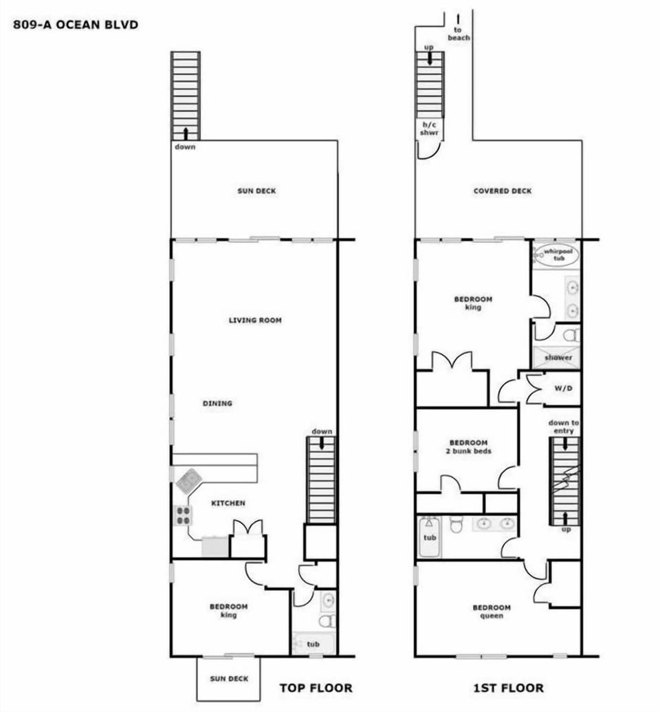
Top Floor:
Street-Side Bedroom: King Bed; shares hall bathroom with tub/shower; private balcony
1st Floor:
Oceanfront Master Suite: King Bed; TV; private bathroom with whirlpool tub and shower; access to covered deck
Street-Side Bedroom: Queen Bed; TV; shares hall bathroom with tub/shower
Middle Bedroom: 2 Sets of Twin Bunk Beds; shares hall bathroom with tub/shower
Location:
Your vacation rental is located in the heart of Topsail Beach and just 6.4 miles south of the Surf City high rise bridge. You can walk to the gift shops, restaurants and Jolly Roger Pier. Also, don't overlook a trip to the nearby Missiles & More Museum while you're here and the Karen Beasley Sea Turtle Hospital on the mainland.
Amenities:
Linens are included for all reservations 7 nights or longer
Central Heat/Air
Keyless Entry
3 cable tvs, DVD player
Wireless Internet
Ipod docking station
Full kitchen with dishwasher & microwave
Washer/Dryer
2-person whirlpool tub
Ceiling fans
Telephone
Enclosed outside shower with hot & cold water
Carport w/wet weather entry
2 oceanfront sundecks with deck furniture and 1 soundview sundeck
Additional Property Information:
Smoke Free - No smoking allowed by anyone on the premises
Pet Free - No pets allowed by anyone on the premises
Trip Preparation:
Rental homes with Ward Realty all have minimum standards to make your stay be as close to home away from home as possible. All of our rentals include fully equipped kitchens, basic small appliances (microwaves, coffee makers, toasters, blenders), pillows, comforters/bedspreads, television(s), central heating/air, iron/ironing board and much more! See Ward Realty's website for a helpful list of what to bring with you to your rental. Please note that this home does not come with sheets or towels. You may bring your own or rent them through Ward Realty.
Disclaimer: Photos displayed on this website are intended to provide a general representation of our vacation rental properties and the surrounding areas. While some amenities may be pictured, they are for display purposes only. Only those amenities listed on the website description, not in photos, are available. While we strive to keep all images accurate and up to date, furnishings, décor, and amenities may change over time and may vary slightly from what is shown. Seasonal differences, weather conditions, and lighting may also affect the appearance of the property. We do our best to present each rental honestly, but we cannot guarantee that every detail will be exactly as depicted. If you have specific questions or requirements, please contact us directly before booking.





