House in Casas Adobes, AZ
Reasons to book
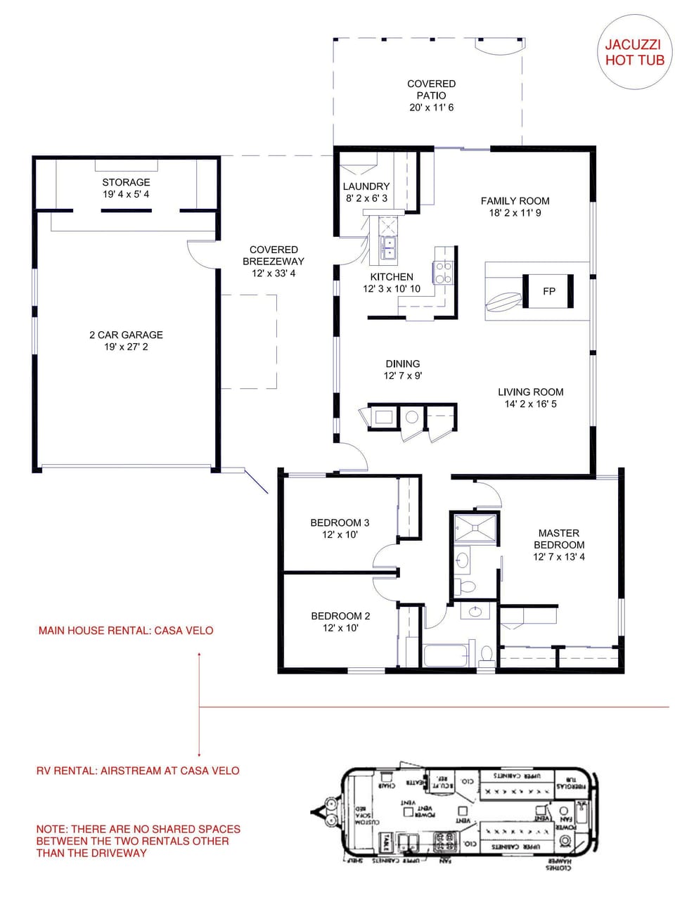
About this house rental
Are you a traveling medical professional looking to save money during your stint in Tucson? If so, consider our recently renovated Airstream Tiny Home! This recently renovated Air Stream Travel Trailer was equipped with a brand new heat pump AC is operated by remote control and will keep you warm in the winter and cool in the summer. The fully operational refrigerator and microwave are allow you to heat up your leftovers. Do you want to cook from scratch? The brand new propane cooktop is fully operational. The RV has been connected to permanent plumbing and the RV toilet has been replaced with a "real" fully operational toilet. The beautiful vessel sink and shower are add character and are fully operational. Don't let the idea of staying in an RV scare you, this one is completely new on on the inside and offers everything an apartment would offer with more privacy and a lower price. Feel free to schedule a showing prior to committing!
The Space:
25' Long 1970s Era Airstream RV Tiny Home fully renovated with two twin beds and a sleeper sofa
Guest Access:
They keys are in the Lockbox
The Neighborhood:
Very safe Tucson neighborhood near Orange Grove and Oracle. You will have your own dedicated parking and the RV is fully fenced in with a private deck for your use.
Other Things to Note:
The RV shares a Driveway with Casa Velo, a 3 bedroom 2 Bathroom home. The home, garage and backyard are a separate rental from the Airstream RV. You will be permitted to use the hot tub and outdoor living areas in the main house when the main house is not booked with guests.Property disclaimer: We partner with SafeGuest to offer a smooth, hotel-style check-in. Before arrival, you’ll be required to verify your ID and lodge a damage deposit.





