House in North Topsail Beach
Reasons to book
About this house rental
Sweet Dreams:
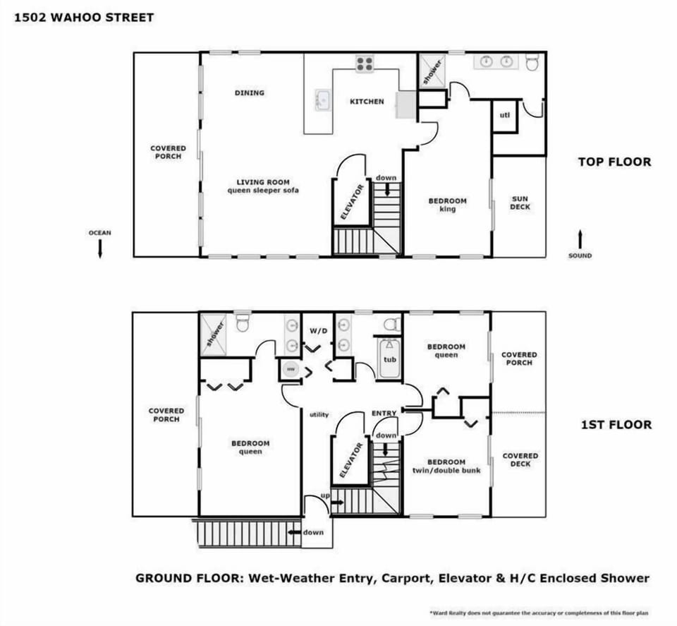
Top Floor Back Bedroom - King Bed, access to private sun deck, TV, en suite bathroom with shower
1st Floor Front Bedroom - Queen Bed, access to private covered porch, TV, en suite bathroom with shower
1st Floor Back Bedroom - Queen Bed, access to covered deck/porch, TV, bathroom with tub/shower adjacent
1st Floor Back Bedroom - Twin/Double Bunk Bed, access to covered deck/porch, TV, bathroom with tub/shower adjacent
Queen Sleeper Sofa in Living Room
Amenities:
Central Heat & Air
Keyless Entry
5 Smart TVs with Cable App
Wireless Internet
Full Kitchen including Dishwasher, Microwave
Washer/Dryer
Elevator
EV Charging Plug
Ceiling Fans
Enclosed Outdoor Shower with Hold/Cold Water
Carport with Wet Weather Entry
3 Covered Porches & 1 Sun Deck
Deck Furniture
Additional Property Information:
Smoke Free! No smoking anywhere on the premises
Dog Friendly! Max 2 Dogs allowed; Sorry, cats not allowed
Community Day Dock – The community boat dock area is for loading and unloading only. Boats cannot be left at the dock for any length of time.
Short Stroll to Beach Access across Island Drive and to the south of 196 Seashore Drive.
Linens (bed and bath) are not included.
Trip Preparation:
Rental homes with Ward Realty all have minimum standards to make your stay be as close to home away from home as possible. All of our rentals include fully equipped kitchens, basic small appliances (microwaves, coffee makers, toasters, blenders), pillows, comforters/bedspreads, television(s), central heating/air, iron/ironing board and much more! See our website for a helpful list of what to bring with you to your rental. Please note that this home does not come with sheets or towels. You may bring your own or rent them through Ward Realty.
Disclaimer: Photos displayed on this website are intended to provide a general representation of our vacation rental properties and the surrounding areas. While some amenities may be pictured, they are for display purposes only. Only those amenities listed on the website description, not in photos, are available. While we strive to keep all images accurate and up to date, furnishings, décor, and amenities may change over time and may vary slightly from what is shown. Seasonal differences, weather conditions, and lighting may also affect the appearance of the property. We do our best to present each rental honestly, but we cannot guarantee that every detail will be exactly as depicted. If you have specific questions or requirements, please contact us directly before booking.





