House in Ripon
Reasons to book
About this house rental
Discover the serenity of Wellington Street in Ripon! Nestled amidst scenic surroundings, this Edwardian stone cottage accommodates up to four guests in comfort. Unwind in the cosy living area after a day of adventure or whip up a feast in the spacious kitchen. From the rear of the property, soak up the breathtaking views of Ripon Cathedral or enjoy the great outdoors in the garden. Wellington Street is also dog friendly so your furry friend is welcome along for a fun-filled stay!
The Space:
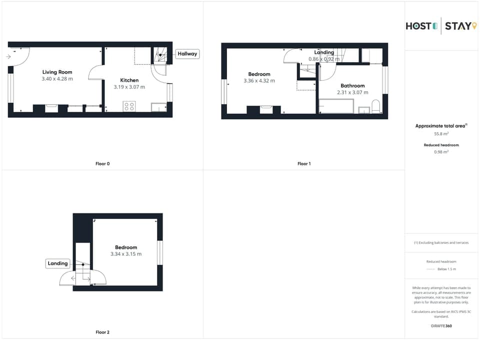
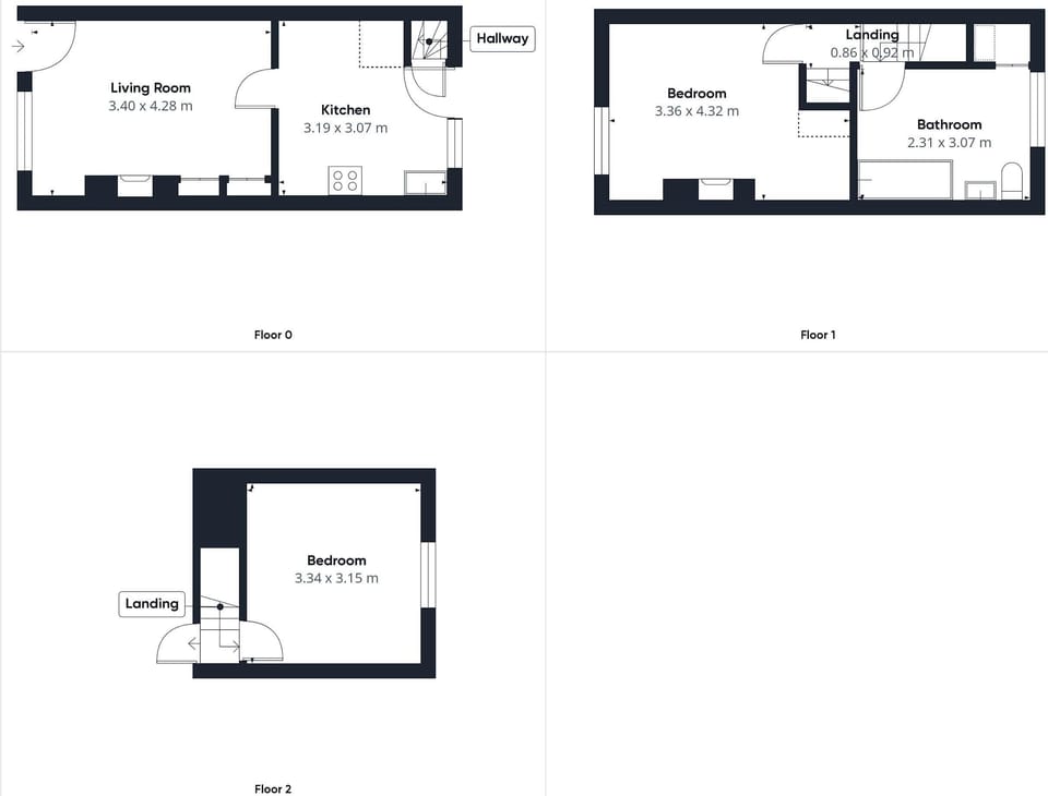
Step into Wellington Street and be greeted by the spacious living room which beckons with warmth and charm, providing a cosy haven for relaxation after a day of exploration.
Equipped with modern appliances and ample cooking space, the kitchen is ideal for preparing delicious meals to be enjoyed together.
On the first floor you will find the first of two well equipped bedrooms, sleeping a maximum of two guests each. Both the first floor and second floor bedrooms boast relaxing double beds.
From the rear of the property, marvel at the breathtaking views of the iconic Ripon Cathedral, creating a picturesque backdrop for your stay.
The family bathroom is located on the first floor. Home to a bathtub and overhead shower, along with a wash basin and WC, this space has everything needed for some ‘me’ time.
Outside, immerse yourself in the natural beauty of the surroundings, with great outdoor space offering the perfect setting for al fresco dining or simply soaking in the serene atmosphere.
Whether you’re seeking a peaceful getaway or an outdoor adventure, Wellington Street promises a memorable stay amidst the idyllic charm of Ripon.
Guest Access:
Guests have access to the full property. The keys to Wellington Street are accessed via a key safe box, and full details will be provided prior to check-in.
Guests can park on the street to unload luggage, however vehicles on this road are for residents only so parking is located by the Cathedral, a 5-10 minute walk from the property. Charges are applied as the car park is Pay & Display.
One well-behaved dog is welcome to stay at Wellington Street per reservation.
Due to the historic nature of the property, the staircases at Wellington Street are steep so please take care when using the stairs. This may make the property unsuitable for anyone with mobility issues.
The Neighborhood:
Nestled in the heart of North Yorkshire, Ripon is a historic cathedral city that blends old-world charm with modern comforts. With its rich heritage, stunning countryside, and welcoming community, it’s the perfect destination for a relaxing holiday.
Ripon’s magnificent Cathedral, dating back over 1,300 years, is a must-visit, boasting breathtaking architecture and a fascinating history. Just a short drive away, you’ll find the UNESCO-listed Fountains Abbey & Studley Royal Water Garden, a stunning site of monastic ruins, tranquil gardens, and wildlife.
For those who love the outdoors, the Yorkshire Dales and Nidderdale Area of Outstanding Natural Beauty offer scenic walking and cycling trails. Families will enjoy Lightwater Valley Theme Park, while history buffs can explore the city's museums, including the Workhouse Museum and the Courthouse Museum.
Ripon’s charming market square hosts a weekly market, where you can find local produce, artisan goods, and unique souvenirs. The city is also home to a variety of independent shops, cosy cafes, and traditional pubs. Enjoy locally sourced meals at one of Ripon’s inviting restaurants or grab a famous Yorkshire afternoon tea.
Whether you’re here for a peaceful retreat, an active adventure, or a cultural escape, Ripon has something for everyone. Your perfect Yorkshire getaway awaits!
Getting Around:
Ripon is well-connected, with easy access to Harrogate, York, and the Yorkshire Dales. If you're arriving by car, there’s plenty of parking, and the scenic countryside drives are well worth the journey.
Public transport options, including buses and taxis, make exploring the surrounding areas convenient. A number of bus routes operate in Ripon offering access to Harrogate, Knaresborough, Leeds, Masham, Northallerton, Thirsk and York.
The nearest train station to Ripon can be found in Thirsk, a short 20-minute drive away from Ripon. Thirsk Train Station has direct services operating to locations across the UK including London, Manchester, Redcar and Sunderland.
Interaction with Guests:
We're always available for our guests so do not hesitate to get in touch.





