Charming 3BR / 2.5BA Home in Gentilly – Close to French Quarter & Lakefront

Big Things Come In Small Packages. Urban Oasis/Vaulted Rustic Wood Beam Ceilings
Kick Back & Relax In Liv Rm On Sleek Sectional in Front of  80" TV w /Surround
Island featuring Cast Iron Sink, Microwave,  DW, & Outlet for your Power Needs.
Sleek 9-ft Long, 32-In Deep Island With Seating for Four—Perfect For Gatherings
Cute Workspace Tucked-Away Under The Stairs—Ideal for Remote Work or Study
Don't miss out! Price and availability may change

Apartment in Ninth Ward, LA

6 guests · 3 bedrooms · 2 baths

Reasons to book

High-end valueWell priced for this area
Book with confidenceWe partner with the top travel sites so you know you're getting a great deal on the perfect rental
Includes essentialsWiFi/Internet, Air conditioning, TV and more

About this apartment rental

Welcome to your home away from home in New Orleans’ vibrant and historic Gentilly neighborhood. This thoughtfully designed modern retreat offers comfort, style, and convenience—just 10–15 minutes from the French Quarter and 5 minutes from the Lakefront.

_________________________
AT-A-GLANCE FEATURES:
_________________________

- 3 bedrooms | 2.5 bathrooms

- Sleeps up to 6 guests

- Approx. 1,350 sq ft of open, well-designed living space

- Private landscaped two-tier deck with pergola & lounge seating

- 80" HD Smart TV with surround sound

- Dedicated remote-work space

- Open-concept kitchen with 9-ft island

- Parking available directly in front of the home

This home is ideal for families, professionals, creatives, and small groups looking for a peaceful residential setting with quick access to the heart of the city.

___________
THE SPACE:
___________

Inside, you’ll find a layout that proves you don’t need a massive footprint to live large. Every inch of the home has been intentionally designed to feel open, comfortable, and functional—while still offering privacy when needed.

The first floor features:

- A private bedroom with a chic queen-size canopy bed

- A second bedroom with custom twin bunk beds, perfect for kids or additional guests

- A full bathroom conveniently located between both bedrooms

- An open-concept kitchen and living area with shaker-style cabinetry, stainless steel appliances, and a stunning 9-foot island—ideal for cooking, dining, or gathering

- The vaulted living room features rustic wood beams, a cozy sectional, and an oversized TV for relaxed evenings or movie nights.

_____________________
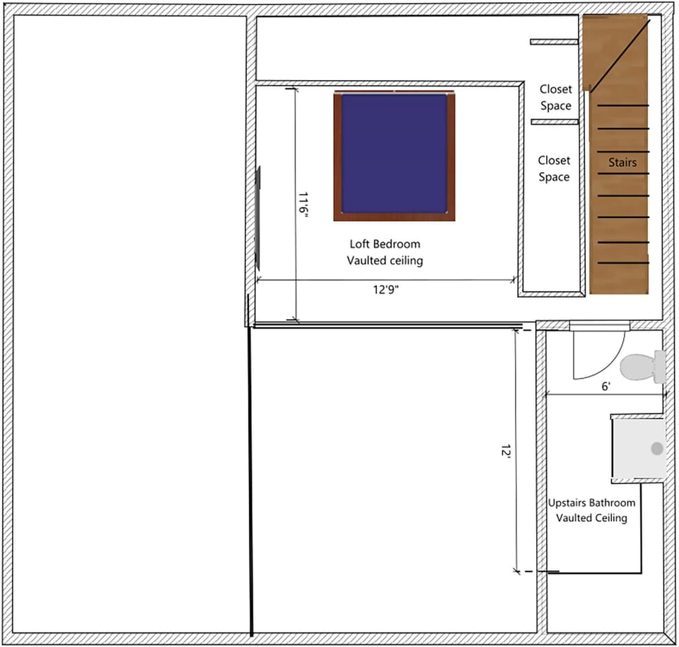
UPSTAIRS LOFT SUITE
_____________________

The lofted third bedroom offers a cozy, elevated retreat that balances privacy with openness. It includes:

- A custom wood platform bed

- Built-in closets

- A private ensuite bathroom with a walk-in shower

While the loft is open to the space below, it feels tucked away—perfect for rest, reading, or focused remote work.

––––––––––––––––
OUTDOOR LIVING:
––––––––––––––––
Step outside to a beautifully landscaped two-tier garden deck, complete with built-in planters, integrated lighting, a shaded pergola, and sunny lounge areas—ideal for morning coffee, evening wind-downs, or stargazing.


––––––––––––––––––––––––––
LOCATION: HISTORIC GENTILLY
––––––––––––––––––––––––––

Gentilly offers a unique blend of New Orleans history, architectural character, and community charm. Known for its raised cottages, mid-century homes, and proximity to institutions like Dillard University and SUNO, the neighborhood provides a peaceful retreat just minutes from downtown energy, dining, and culture.

_______________________________
WE HOPE TO HOST YOU SOON!
_______________________________

Whether you’re visiting New Orleans for culture, cuisine, music, or work, this modern Gentilly home offers a welcoming, well-located space to unwind and feel at home. We look forward to hosting you.

Amenities at Charming 3BR / 2.5BA Home in Gentilly – Close to French Quarter & Lakefront

Air conditioning
Non-smoking
TV
Coffee/tea maker
Refridgerator
Kitchen
WiFi/Internet
Microwave
Dishwasher
Washing machine
Dryer
Patio
Kitchenware
No pets allowed
Garden
Oven
Stove
Laundry services
Bath or shower
Ironing facilities
Towels
Desk
Hairdryer

Map of Ninth Ward, LA


$$$$
expedia logo

FAQs

Is parking included with this apartment?

Parking is not specified as an available amenity at Charming 3BR / 2.5BA Home in Gentilly – Close to French Quarter & Lakefront. For more information, we encourage you to contact the property about where to park.

Is there a pool at this apartment?

We didn’t find pool listed as an amenity for this apartment. It may be worth double checking if a pool is important for your stay.

Is Charming 3BR / 2.5BA Home in Gentilly – Close to French Quarter & Lakefront pet friendly?

Unfortunately, this apartment is not pet-friendly. Try searching again and filter for "Pets Allowed"

What amenities are available at Charming 3BR / 2.5BA Home in Gentilly – Close to French Quarter & Lakefront?

We found 23 amenities for this rental. This includes air conditioning, non-smoking, tv, coffee/tea maker, and refridgerator.


Explore similar stays in Ninth Ward

Explore all stays