Apartment in La Clusaz
Reasons to book
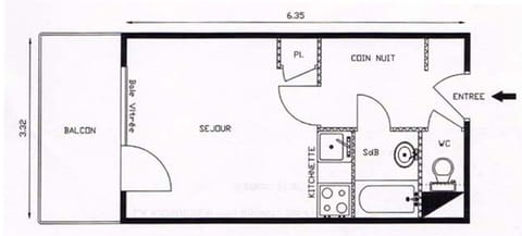
About this apartment rental
- Entrance with 2 bunk beds 70 cm x 1 pers. (top bed forbidden - 6 ans) (4,56 sqm)
- Living room with french window and balcony South facing with blind, TV, sofa-bed 140 cm x 2 [hidden],95 sqm)
- Kitchen area (4 electric hobs, mini owen, cooker hood, refrigerator 121L, microwave, dishwasher) (1,05 sqm)
- Bathroom (shower, washbasin) (1.96 sqm)
- Toilet (0.97 sqm)
Level : 2nd floor with lift
Individual garage (door dimensions W 2,60 m x H 1,90 m x L 5.43 m)
Wide garage to put some bikes besides the cars
Wifi included / Ski locker
Pets allowed (extra 20 €) / Non-smoking flat
Not accessible to people with reduced mobility
BED LINEN, PILLOWCASES AND BATH MAT ARE PROVIDED (except towels and dish towel)
Optional services to be paid on site and to be booked before your arrival:
Animal : 20.0 €.
BB bed : 15.0 €.
Property managed by a professional. Unless stated, services such as cleaning, bed linen, towels etc. are not included in the price of this rental. If pets are allowed (information in the advertisement), charges may be applicable.
Only equipment mentioned in this advertisement are present. Equipment not mentioned are not considered to be present. Unless there is an electric charging station in the accommodation, charging electric vehicles is prohibited.
"LA RESIDENCE" (Build.2), set of 4 blocks with twenty accommodations each, located in the center of the resort. The village appreciated for its shops and boutiques.
At 450 m from the main rally of the ski school and skating rink. Panoramic view on the "Aravis mountains".
At 650m from the bus station and 33 km from the Annecy train station.




































