Villa in Como
Reasons to book
About this villa rental
Villa Sassi was a monastry till the seventeenth century, located on the top of the hill Cardina Which faces lake Como. It's a great place to enjoy the region, the nature, yet still being just a few steps away from Milan.
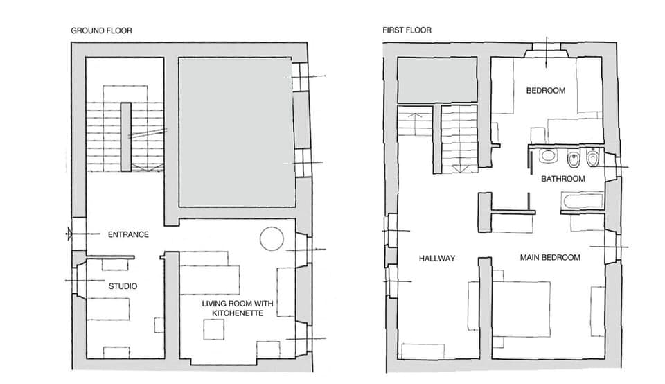
• 180 square meters on two floors
• 2 bedrooms share 1 bathroom
• LCD TV and free internet access
• livingroom with a charming fireplace
• kitchenette with stove, sink, and fridge
• complete set of kitchenware, dishes and potery
• private XVIII century chapel
• terrace and 2. 000 square meters private garden
• small pets friendly
• daily songbird wake up call :)
** the picture of the lake Como view is shot 200 mts on the way before Villa Sassi; the lake is not visible from the property.





