House in Ridgedale, MO
Reasons to book
About this house rental
Welcome to Sunset at Branson Cove—a picture-perfect retreat where the natural splendor of the Ozarks meets the ease and elegance of a modern lakeside escape. Whether you're dreaming of peaceful mornings, laughter-filled evenings, or adventure-packed days, this single-level luxury lodge sets the scene for unforgettable memories with the people you love.
Inside, you'll find a thoughtfully designed open-concept layout featuring warm wood accents, shiplap touches, and upscale farmhouse décor that feels both cozy and refined. The fully equipped kitchen is a dream for home cooks and snack lovers alike, complete with modern appliances and generous counter space. Share meals and moments around the oversized dining table, then settle into the living room for game night, a streaming marathon, or simply a quiet evening by the fire.
When you're ready to unwind, head out back to your private covered deck, where the bubbling hot tub, grill, and outdoor seating area invite hours of relaxation. Whether you're enjoying a sunrise coffee or stargazing in the evening, this space is made for lingering. Just off the front porch, you'll also enjoy access to a shared outdoor putting green—a charming bonus for guests of select homes. Putters and golf balls are provided, so it's always tee time.
And when you're ready to explore, the best of Branson is at your fingertips. Take a short stroll to the indoor and outdoor pools, waterslide, pickleball court, and children's playground, or follow the scenic walking trail to Table Rock Lake for peaceful views and fresh air. With world-class attractions, lakefront fun, and thoughtful amenities all around you, Sunset at Branson Cove is more than just a place to stay—it's a place to savor.
━━━━━━━━━━━━━━━━━━━━━━━━━━━━━━━━━━
🛋️ COMFORTABLE & SPACIOUS LIVING FOR UP TO 7 GUESTS
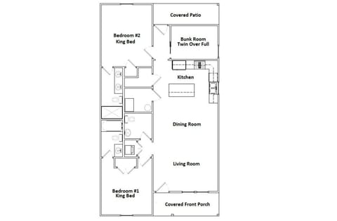
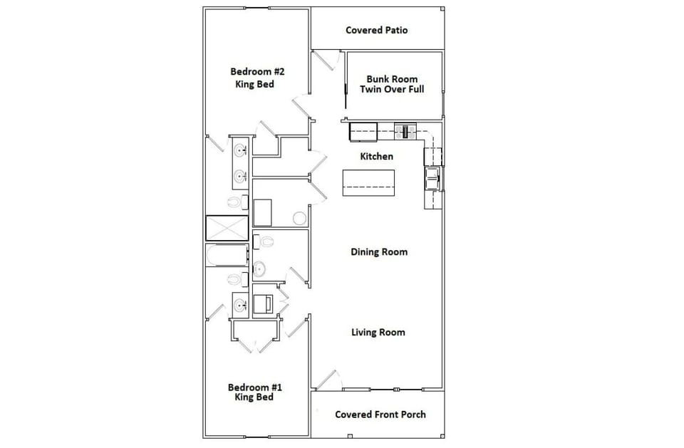
3 Bedrooms | 2.5 Bathrooms | Sleeps 7
Bedroom 1: King bed, ensuite bathroom
Bedroom 2: King bed, ensuite bathroom
Bedroom 3: Twin-over-full bunk bed
Open-concept living area with stylish furnishings
Fully equipped kitchen with full-size appliances
Dining table with bench and chair seating
Laundry room with washer and dryer
Private back deck with hot tub, grill & outdoor dining
Access to shared putting green out front
━━━━━━━━━━━━━━━━━━━━━━━━━━━━━━━━━━
🌄 OUTDOOR LIVING – HOT TUB, GRILL, PUTTING GREEN & LAKE ACCESS
Private deck with hot tub, grill, and patio seating
Shared putting green (putters & balls provided)
Indoor pool (open year-round)
Outdoor pool with waterslide (seasonal)
Playground and pickleball court just a short walk away
Scenic lakeside trail to Table Rock Lake
━━━━━━━━━━━━━━━━━━━━━━━━━━━━━━━━━━
📍 WHAT'S NEARBY – BRANSON'S BEST WITHIN 3–9 MILES
Table Rock State Park Marina (3 miles) – Boat rentals, slips, lakeside trails, and picnic areas 🚤🌳
Moonshine Beach (3 miles) – Family-friendly swim beach with sand, sun, and kayak rentals 🏖️
Silver Dollar City (9 miles) – 1880s-themed amusement park with thrilling rides & live entertainment 🎢
Branson Landing (8.5 miles) – Dining, shops, fountains, and a vibrant waterfront 🛍️🍽️
WonderWorks, Aquarium at the Boardwalk, Ferris Wheel & Dolly Parton's Stampede (5–6 miles) – Top indoor and family-friendly attractions 🎡🐠🧠
━━━━━━━━━━━━━━━━━━━━━━━━━━━━━━━━━━
🐾 PET POLICY – SMALL DOG FRIENDLY
Up to 2 small dogs (35 lbs or less) are welcome. A $100 pet fee per dog applies.
Dogs must be:
✔️ Crated if left alone in the cabin
✔️ Leashed outdoors
✔️ Up to date on flea/tick prevention and vaccinations
🚫 No pets on furniture or beds
📋 Bring vet records if possible in case verification is needed





