2** Apartment for 4, near slopes, pets allowed

Living area
Private kitchen
Private kitchen
Property grounds
Outdoor dining
Don't miss out! Price and availability may change

Apartment in La Clusaz

4 guests · 2 bedrooms · 1 bath

Reasons to book

Great for petsBring all your friends and family, even the furry ones
High-end valueWell priced for this area
Book with confidenceWe partner with the top travel sites so you know you're getting a great deal on the perfect rental

About this apartment rental

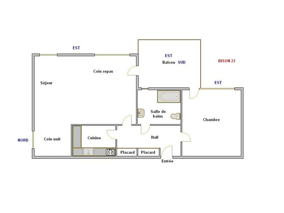
Located in the upper part of the village of La Clusaz, BISON 23**, rated 2 stars, is a 37 m² apartment with 2 bedrooms and can accommodate up to 4 travelers. Its privileged location allows easy access to the village, shops and departures of the ski slopes, ideal for organizing your days without constraint.
Outside, the south-east facing balcony extends the living room and offers open views of the mountains.
Nearby, the village center is 100 m away and the Bossonnet ski slopes where ski lessons start every morning is only 330 m away. A bus stop 20 m away in winter and 200 m away in summer makes getting around easier, while 4.5 km away the Lac des Confins surrounded by peaks, is ideal for both summer walks and winter outdoor activities. Annecy train station (35 km) and Geneva International Airport (67 km) provide easy access.
// In detail // 
The entryway, based on the 2nd floor, leads to a comfortable bedroom equipped with a double bed (160 cm) and access to the south-east facing balcony. The living room also opens onto the same south-east balcony and includes a dining area and a lounge area. A second bedroom facing the rear of the residence features two bunk beds (80 cm). The open kitchen is integrated into the living area.
A bathroom with bathtub and WC completes the apartment.

Key features:

Services included: Bed linen included. Towels and end-of-stay cleaning available at an additional cost.

Equipment: Trio: ceramic hobs, oven, dishwasher, microwave, refrigerator, raclette machine, fondue set.

Comfort: Central heating with radiators, ski locker.

Leisure: Flat-screen TV, high-speed Wi-Fi.

Insurance and conditions: Insurance and cancellation conditions apply according to the General Terms and Conditions of Sale.

Pets: Pets are welcome (€15 per day and per animal).

Non-smoking flat: Entirely non-smoking interior for a healthy and pleasant stay.

Accessibility: Flat not suitable for people with reduced mobility.

Translation generated automatically by AI – May contain inaccuracies.

Optional services to be paid on site and to be booked before your arrival:
. Animal supplement : 105.0 € per stay
. End-of-stay cleaning – 30 m² to 39 m² : 74.0 € per stay
. Bath mat : 5.0 € per stay

Property managed by a professional. Unless stated, services such as cleaning, bed linen, towels etc. are not included in the price of this rental. If pets are allowed (information in the advertisement), charges may be applicable.
Only equipment mentioned in this advertisement are present. Equipment not mentioned are not considered to be present. Unless there is an electric charging station in the accommodation, charging electric vehicles is prohibited.

Residence located UPTOWN, at 250 m from BOSSONNET Telemix (6-seater combined chairlift and cable car), chairlift, ski lift (ski lessons departure / contact Schools) and shops. Bus stop in front of the residence in winter season and at 240 m in summer season.

Amenities at 2** Apartment for 4, near slopes, pets allowed

Non-smoking
Pets allowed
Family friendly

Map of La Clusaz


$$$$
expedia logo

FAQs

Is parking included with this apartment?

Parking is not specified as an available amenity at 2** Apartment for 4, near slopes, pets allowed. For more information, we encourage you to contact the property about where to park.

Is there a pool at this apartment?

We didn’t find pool listed as an amenity for this apartment. It may be worth double checking if a pool is important for your stay.

Is 2** Apartment for 4, near slopes, pets allowed pet friendly?

Yes! This apartment is pet-friendly. For more information, we recommend contacting the booking provider about animal policies.

What amenities are available at 2** Apartment for 4, near slopes, pets allowed?

We found 3 amenities for this rental. This includes non-smoking, pets allowed, and family friendly.


Explore similar stays in La Clusaz

Explore all stays