Apartment in La Clusaz
Reasons to book
About this apartment rental
2** rating / 4 GUESTS
2 ROOMS + SLEEPING NOOK / 4 guests / 37 m² / 2nd floor / South East facing - WIFI
Residence located UPTOWN, at 330 m from BOSSONNET Telemix (6-seater combined chairlift and cable car), chairlift, ski lift (ski lessons departure / contact Schools) and at 100 m from the shops. Bus stop at 20 m in winter season and at 200 m in summer season.
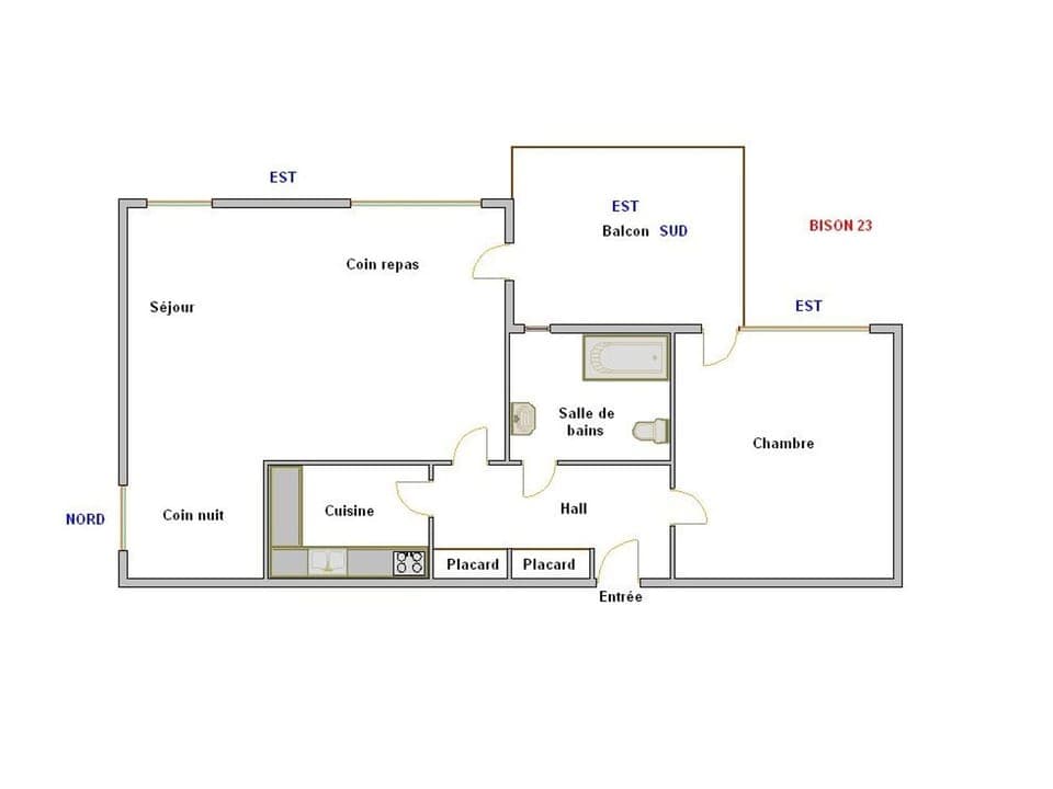
- HALL (4.20 m²)
- BEDROOM (9.72 m²): 1 DOUBLE BED (160), east facing bay window + French window, south east facing balcony, next door residences view
- BATHROOM (2.72 m²): bathroom washbasin, bathtub, WC, small east facing window
- KITCHENETTE (2.59 m²): fridge (122 L), MICROWAVE, combined GLASS-CERAMIC STOVE + OVEN + DISHWASHER
- LIVING ROOM (17.65 m²) and a SLEEPING NOOK: 2 BUNK BEDS (80) -> upper bed forbidden under 6 years old, north facing window, route de la Piscine view, EATING PLACE: flat screen TV, DVD player, east facing windows, south facing French window, south east facing balcony, village / mountain view
Pets allowed – €15/day/pet.
DUVET COVERS, SHEETS AND PILLOWCASES PROVIDED. NO SMOKING APARTMENT. NOT ACCESSIBLE TO PEOPLE WITH REDUCED MOBILITY. INTERNET access.
Ski locker. Central heating with radiators.
Residence of 29 apartments, built in 1967.
Annecy train station: 33km / La Clusaz bus station: 900m.
Bonus: Its location
Optional services to be paid on site and to be booked before your arrival:
. Animal supplement : 105.0 € per stay
. Mid-stay cleaning : 50.0 € per stay
. Bath mat : 5.0 € per stay
Property managed by a professional. Unless stated, services such as cleaning, bed linen, towels etc. are not included in the price of this rental. If pets are allowed (information in the advertisement), charges may be applicable.
Only equipment mentioned in this advertisement are present. Equipment not mentioned are not considered to be present. Unless there is an electric charging station in the accommodation, charging electric vehicles is prohibited.
Residence located UPTOWN, at 250 m from BOSSONNET Telemix (6-seater combined chairlift and cable car), chairlift, ski lift (ski lessons departure / contact Schools) and shops. Bus stop in front of the residence in winter season and at 240 m in summer season.





