Top-tier experienceA high end property in this area
Book with confidenceWe partner with the top travel sites so you know you're getting a great deal on the perfect rental
Includes essentialsPets allowed, Family friendly and more
About this house rental
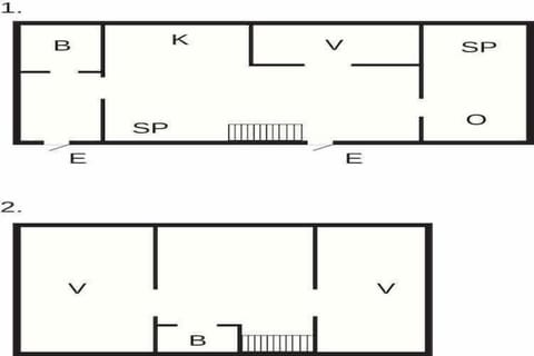
Large house with a rural, seaside location in Övra Vannborga where you are close to both Köpingsvik's wonderful beaches and Borgholm. You have a large garden that you share with house 61811 (the red one) which is also rented out via Stugsommar/Dancenter. The accommodation is therefore also perfect for two families who want to celebrate their holidays together. Both houses have their own dining areas in the garden. Here you live in a beautiful setting and close to the sea in a cozy village with active farms with Borgholm only 9km away and Köpingsvik even closer. It is only 2km to Lundegård. The house has a large kitchen with dining area. In the large living room there is dining room furniture and a sofa group in front of the TV. You sleep in three bedrooms. A bedroom with two beds is on the entrance floor. Upstairs you sleep in a bedroom with a double bed and one with two single beds. There is a sofa bed in the living room. Toilet and sink are both upstairs and downstairs. Shower is upstairs. Laundry room with washing machine is available. Friendly dogs are welcome. Layout: Living room(double folding bed, TV(swedish TV channels)), Kitchen(cooker(electric), coffee machine, microwave, dishwasher, fridge-freezer), bedroom(2x single bed), bedroom(2x single bed), bedroom(double bed), bathroom(washbasin, shower, toilet, washing machine), bathroom(washbasin, toilet), heating(central), BBQ, parking
These costs are mandatory and charged on site. They are not included in the rental price.: Final Cleaning; Own responsibility Pets; Max. 2; free of charge Bed linen; Bring your own
Optional services that you can arrange on site: Bath towels; Bring your own Wifi; Not available
Amenities at 8 person holiday home in KÖPINGSVIK
Pets allowed
Family friendly
Map of Kalmar County, Sweden
Things to know
Additional fees to expect
Cleaning & other feesWe include all stay related fees in the Cleaning Fee line, which may include cleaning, property manager, resort, tourism and other stay related fees. All Vrbo properties are professionally cleaned after each stay.
Service feeThis helps Vrbo provide a safer and more secure booking experience.
TaxesTaxes on accommodation such as Occupancy Tax, VAT, or GST. May also include tourism fees.
Customer support
Customer support is handled by our partner Vrbo
$$$$
Don't miss out! Price and availability may change
$$$$
House in Kalmar County, Sweden
8 guests · 3 bedrooms · 1 bath
Reasons to book
Top-tier experienceA high end property in this area
Book with confidenceWe partner with the top travel sites so you know you're getting a great deal on the perfect rental
Includes essentialsPets allowed, Family friendly and more
Map of Kalmar County, Sweden
About this house rental
Large house with a rural, seaside location in Övra Vannborga where you are close to both Köpingsvik's wonderful beaches and Borgholm. You have a large garden that you share with house 61811 (the red one) which is also rented out via Stugsommar/Dancenter. The accommodation is therefore also perfect for two families who want to celebrate their holidays together. Both houses have their own dining areas in the garden. Here you live in a beautiful setting and close to the sea in a cozy village with active farms with Borgholm only 9km away and Köpingsvik even closer. It is only 2km to Lundegård. The house has a large kitchen with dining area. In the large living room there is dining room furniture and a sofa group in front of the TV. You sleep in three bedrooms. A bedroom with two beds is on the entrance floor. Upstairs you sleep in a bedroom with a double bed and one with two single beds. There is a sofa bed in the living room. Toilet and sink are both upstairs and downstairs. Shower is upstairs. Laundry room with washing machine is available. Friendly dogs are welcome. Layout: Living room(double folding bed, TV(swedish TV channels)), Kitchen(cooker(electric), coffee machine, microwave, dishwasher, fridge-freezer), bedroom(2x single bed), bedroom(2x single bed), bedroom(double bed), bathroom(washbasin, shower, toilet, washing machine), bathroom(washbasin, toilet), heating(central), BBQ, parking
These costs are mandatory and charged on site. They are not included in the rental price.: Final Cleaning; Own responsibility Pets; Max. 2; free of charge Bed linen; Bring your own
Optional services that you can arrange on site: Bath towels; Bring your own Wifi; Not available
Amenities
Pets allowed
Family friendly
Things to know
Additional fees to expect
Cleaning & other feesWe include all stay related fees in the Cleaning Fee line, which may include cleaning, property manager, resort, tourism and other stay related fees. All Vrbo properties are professionally cleaned after each stay.
Service feeThis helps Vrbo provide a safer and more secure booking experience.
TaxesTaxes on accommodation such as Occupancy Tax, VAT, or GST. May also include tourism fees.
Customer support
Customer support is handled by our partner Vrbo
FAQs
Is parking included with this house?
Parking is not specified as an available amenity at 8 person holiday home in KÖPINGSVIK. For more information, we encourage you to contact the property about where to park.
Is there a pool at this house?
We didn’t find pool listed as an amenity for this house. It may be worth double checking if a pool is important for your stay.
Is 8 person holiday home in KÖPINGSVIK pet friendly?
Yes! This house is pet-friendly. For more information, we recommend contacting the booking provider about animal policies.
What amenities are available at 8 person holiday home in KÖPINGSVIK?
We found 2 amenities for this rental. This includes pets allowed, and family friendly.
Kitchen or Kitchenette · Air conditioner · Internet / Wifi
When traveling to Kalmar County, Sweden, if you are looking for (business stays, family stays, couples stay, getaway vacation, etc.) this is the perfect place at $186 per night.
Business stays, family stays, couples stay, getaway vacation, and rental in Kalmar County, Sweden at 5 bedroom awesome home in Mörbylånga for $198 for your next trip.
Looking for a memorable stay in Kalmar County, Sweden? Our House might just be what you're looking for. Enjoy amenities including Pets allowed and Family friendly, and more during your stay.
Experience the best of Kalmar County, Sweden with this House available for $196. This property is equipped with amenities including Family friendly, and more.
Pets allowed · Kitchen or Kitchenette · Internet / Wifi
Looking for a business stay, family stay, couples stay, getaway vacation, or traveling to Kalmar County, Sweden, at $143 per night for your next great vacation.
Experience vacation in Kalmar County, Sweden with our House, Charming house by Emån in Hälleforshult, Påskallavik | SE05074. Enjoy amenities such as Family friendly, and more.
Looking for the perfect place to call home during your trip to Kalmar County, Sweden? This Chalet offers a comfort and style with top-notch amenities, including Family friendly, and more.
Looking for the perfect place to call home during your trip to Kalmar County, Sweden? This House offers a comfort and style with top-notch amenities, including Family friendly, and more.
Nestled in Kalmar County, Sweden, this House is perfect for your next vacation. Enjoy Gorgeous home in Färjestaden's top-rated amenities, including Pool, TV and Kitchen or Kitchenette, and more.
Indulge in a peaceful retreat at 3 bedroom gorgeous home in Färjestaden, our elegant House in Kalmar County, Sweden. Enjoy amenities including Pets allowed and Family friendly, and more.
Nestled in Kalmar County, Sweden, this House is perfect for your next vacation. Enjoy 3 bedroom gorgeous home in Färjestaden's top-rated amenities, including Pets allowed and Family friendly, and more.
Indulge in a peaceful retreat at 4 bedroom awesome home in Färjestaden, our elegant House in Kalmar County, Sweden. Enjoy amenities including Family friendly, and more.
Enjoy the best of Kalmar County, Sweden in our House, Stunning home in Figeholm with kitchen. A stunning property with amenities including Fireplace, TV and Internet / Wifi, and more.
Looking for the perfect place to call home during your trip to Kalmar County, Sweden? This House offers a comfort and style with top-notch amenities, including Family friendly, and more.
Kitchen or Kitchenette · Internet / Wifi · Hot tub or spa
Nestled in Kalmar County, Sweden, this House is perfect for your next vacation. Enjoy Stunning home in Borgholm with WiFi's top-rated amenities, including Internet / Wifi, Garden and Fireplace, and more.
Looking for a Cottage in Kalmar County, Sweden, this Cottage for $197 per night for your business stay, family stay, couples stay, getaway vacation, on your next trip.
Discover the beauty of Kalmar County, Sweden with a stay at Stunning home in Figeholm with kitchen, a top rated House with amenities such as Family friendly, and more.
Enjoy the best of Kalmar County, Sweden in our House, Awesome home in Borgholm with kitchen. A stunning property with amenities including Kitchen or Kitchenette, TV and Dishwasher, and more.
Enjoy the best of Kalmar County, Sweden in our House, Pet friendly home in Köpingsvik. A stunning property with amenities including Pets allowed and Family friendly, and more.
Looking for the perfect place to call home during your trip to Kalmar County, Sweden? This House offers a comfort and style with top-notch amenities, including Pets allowed and Family friendly, and more.
Experience vacation in Kalmar County, Sweden with our House, Nice home in Köpingsvik with sauna. Enjoy amenities such as Pets allowed and Family friendly, and more.