House in Lake Austin, TX
Reasons to book
About this house rental
We have an expansive 360 tour of this space - check it out by scanning the QR code in the image gallery. You can use the floor plan or the navigation bar at the bottom to explore the house. Also, if you go to an outdoor space, look up, and click the cloud with the arrow, then you will also get a tour of Austin! Enjoy!
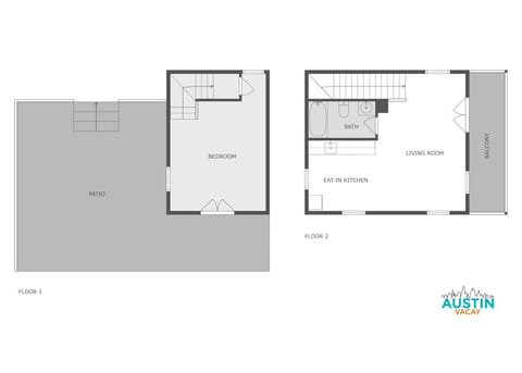
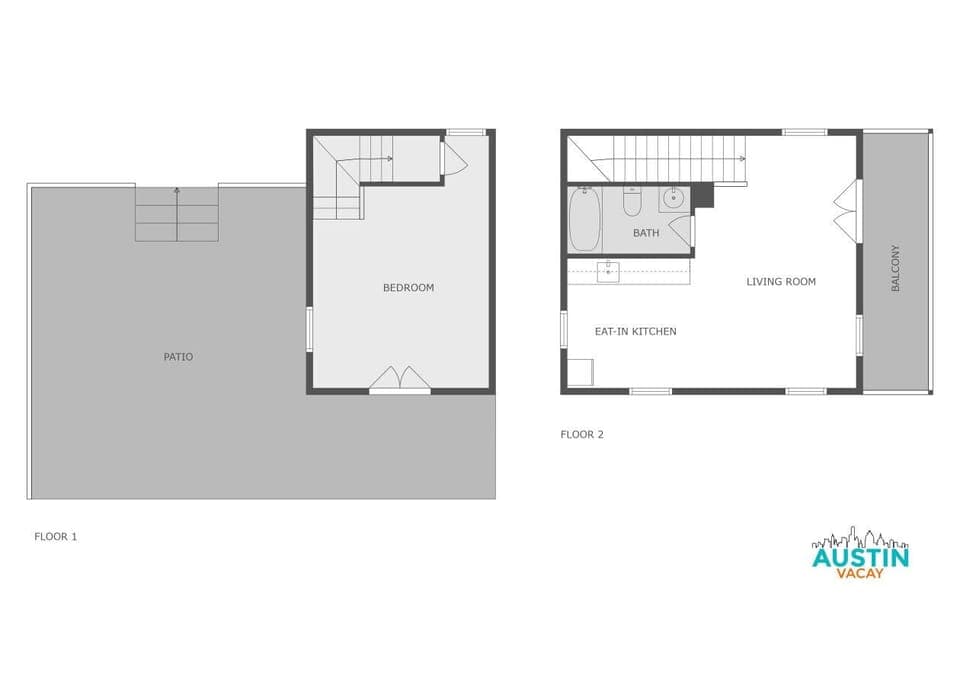
As you enter through the main floor, you`ll find the inviting bedroom featuring a plush queen bed fitted with custom luxury hotel linens. You will love our bed on those long and hot Texas summer days as it is a reclining bed with a cooling mattress!! There`s ample storage space for your clothes and belongings, and an additional smart TV for your entertainment. Ascend to the second floor to discover the heart of the home. The spacious living room is equipped with a smart TV and a sleeper sofa, complete with extra linens and bedding for added comfort. Adjacent to the living area is a well-appointed kitchenette, including a fridge, coffee maker, microwave, and a dining area that seats four. Though there is no stove, the kitchenette is perfect for preparing light meals and enjoying your favorite beverages.
The second floor also features a full bathroom stocked with all essentials, including shampoo, conditioner, and body wash dispensers, ensuring a spa-like experience. For those who need to catch up on work or stay connected, the desk with a printer and high-speed Wi-Fi makes it easy to work from home. Step out onto the balcony from the living room to enjoy fresh air and a peaceful view, or head down to the courtyard to make use of the grills, dining area, and prep table – perfect for outdoor dining and entertaining.
Lakeway is known for its beautiful scenery and outdoor activities. Just a short ride away, you`ll find access to Lake Travis, where you can enjoy boating, fishing, and various water sports. Nearby parks and hiking trails offer plenty of opportunities for nature walks and picnics. The area also boasts a variety of dining options, shopping centers, and entertainment venues, ensuring there`s always something to do.
With free parking available on a gravel area by the home and additional space for a boat or larger vehicle upon request. Please reach out to us for pricing and availability.
Our Lakeway retreat is the ideal base for exploring the region. Whether you`re here for a relaxing getaway or a work-from-home escape, you`ll find everything you need for a memorable stay. Book your stay with us and experience the best of the Lakeway area of Austin, Texas, from the comfort of our stylish and well-equipped home. Enjoy the tranquility of the area while being just a short drive from the vibrant city of Austin.
Guests will have access to the entire back house, a specified parking area, and the shared courtyard with grills and dining.
After booking, you`ll be provided a link where you can upgrade your stay or claim exclusive FREE PERKS (yes, even FREE LOCAL BEER 🍻). Purchase upgrades such as early check-in, late check-out, romance packages, at-home massage, family-friendly add-ons, additional cleanings, and much more to make your Austin experience even better!!
The home is located in the scenic and serene community of Steiner Ranch, nestled along the shores of Lake Austin and Lake Travis in Austin, Texas. This area is renowned for its natural beauty, offering residents and visitors picturesque views, lush green spaces, and an abundance of outdoor recreational activities. With numerous parks, hiking and biking trails, and access to water sports, it`s a haven for nature lovers and adventure seekers. The neighborhood is also home to excellent schools, a variety of dining options, and convenient amenities, making it a desirable location for families and tourists alike. Whether you`re looking to explore the great outdoors or enjoy a peaceful retreat, 78732 provides the perfect backdrop for your stay.
Scooters (Lime & Bird) as well as Lyft and Uber are the best ways to get around Austin, especially this close to everything. However, there are also a lot of public transportation options in this area (see CapMetro`s website).




































